The Fellow Bunkyo7階の貸事務所・賃貸オフィス情報
The Fellow Bunkyo7階の賃貸オフィス・貸事務所情報
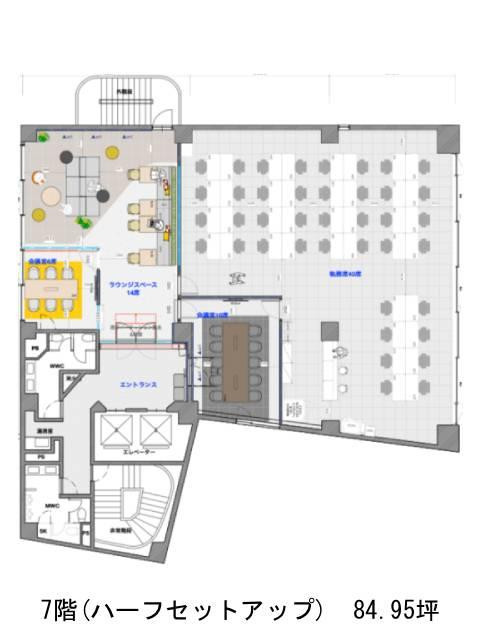
The Fellow Bunkyoのフロア情報
募集階数
7階
面積
84.95坪
賃料+共益費
1,868,900円
22,000円/坪
保証金
応相談
入居時期
2026年7月上旬
更新料
なし
償却費
なし
礼金
なし
The Fellow Bunkyo
- エレベーター
- 個別空調
- 男女別トイレ
- 新耐震基準
The Fellow Bunkyoのフロア情報
募集階数
7階
面積
84.95坪
賃料+共益費
1,868,900円
22,000円/坪
保証金
応相談
入居時期
2026年7月上旬
更新料
なし
償却費
なし
礼金
なし
The Fellow Bunkyoの物件情報
The Fellow Bunkyo(文京区大塚)は新大塚駅徒歩4分、護国寺駅徒歩9分、向原駅徒歩12分の賃貸オフィスです。
The Fellow Bunkyoのアクセス
The Fellow Bunkyoのテナント募集中区画
| 階数 | 面積 | 賃料+共益費 | 保証金 | 入居時期 | 検討 | 図面 | 詳細 |
|---|---|---|---|---|---|---|---|
| 7 | 84.95坪 |
1,868,900円22,000円/坪
|
応相談
|
2026年7月上旬 |


