日比ビル2階の貸事務所・賃貸オフィス情報
日比ビル2階の賃貸オフィス・貸事務所情報
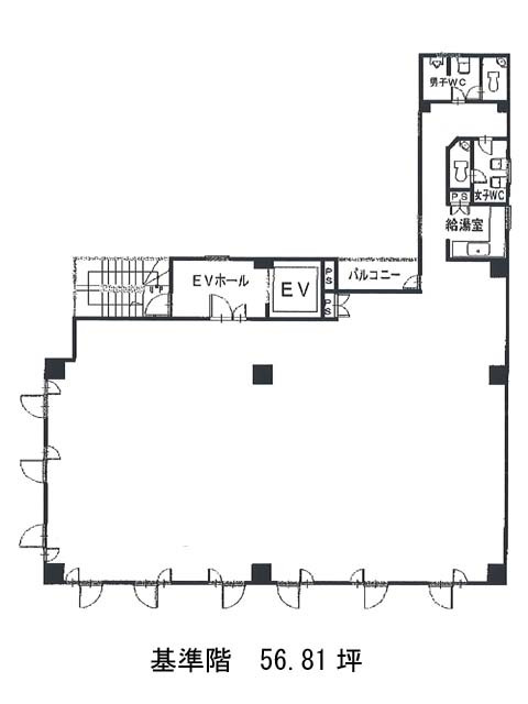
日比ビルのフロア情報
募集階数
2階
面積
56.81坪
賃料+共益費
687,401円
12,100円/坪
保証金
306万円
入居時期
即
更新料
新1ケ月
償却費
なし
礼金
1ケ月
日比ビル
- 物件番号
- 788-00269
- 所在地
- 東京都文京区本郷2-6-7
- 竣工年
- 1994年4月
- 規模
- 地上 6階
- エレベーター
- 個別空調
- 男女別トイレ
- 新耐震基準
日比ビルのフロア情報
募集階数
2階
面積
56.81坪
賃料+共益費
687,401円
12,100円/坪
保証金
306万円
入居時期
即
更新料
新1ケ月
償却費
なし
礼金
1ケ月
日比ビルの物件情報
日比ビル(文京区本郷)は水道橋駅徒歩5分、本郷三丁目駅徒歩7分、春日駅徒歩10分の賃貸オフィスです。
日比ビルのアクセス
日比ビルのテナント募集中区画
| 階数 | 面積 | 賃料+共益費 | 保証金 | 入居時期 | 検討 | 図面 | 詳細 |
|---|---|---|---|---|---|---|---|
| 2 | 56.81坪 |
687,401円12,100円/坪
|
306万円
|
即 |


