(仮)One-Ikebukuro3階の貸事務所・賃貸オフィス情報
(仮)One-Ikebukuro3階の賃貸オフィス・貸事務所情報
(仮)One-Ikebukuroのフロア情報
募集階数
3階
面積
47.67坪
賃料+共益費
応相談
応相談
保証金
応相談
入居時期
2026年6月上旬
更新料
なし
償却費
2ケ月
礼金
なし
(仮)One-Ikebukuro
- エレベーター
- 個別空調
- 男女別トイレ
- 駐車場
- 新耐震基準
(仮)One-Ikebukuroのフロア情報
募集階数
3階
面積
47.67坪
賃料+共益費
応相談
応相談
保証金
応相談
入居時期
2026年6月上旬
更新料
なし
償却費
2ケ月
礼金
なし
(仮)One-Ikebukuroの物件情報
(仮)One-Ikebukuro(豊島区池袋)は池袋駅徒歩10分、北池袋駅徒歩10分、下板橋駅徒歩15分の賃貸オフィスです。
(仮)One-Ikebukuroのアクセス
(仮)One-Ikebukuroのテナント募集中区画
| 階数 | 面積 | 賃料+共益費 | 保証金 | 入居時期 | 検討 | 図面 | 詳細 |
|---|---|---|---|---|---|---|---|
| 1-3 | 151.83坪 |
応相談応相談
|
応相談
|
2026年6月上旬 | |||
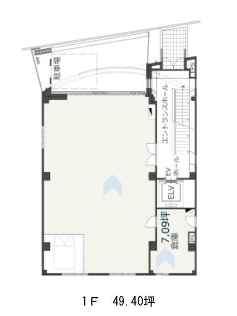
| 1 | 49.40坪 |
応相談応相談
|
応相談
|
2026年6月上旬 | |||
| 2 | 47.67坪 |
応相談応相談
|
応相談
|
2026年6月上旬 | |||
| 3 | 47.67坪 |
応相談応相談
|
応相談
|
2026年6月上旬 |


