レスポワール池袋2階の貸事務所・賃貸オフィス情報
レスポワール池袋2階の賃貸オフィス・貸事務所情報
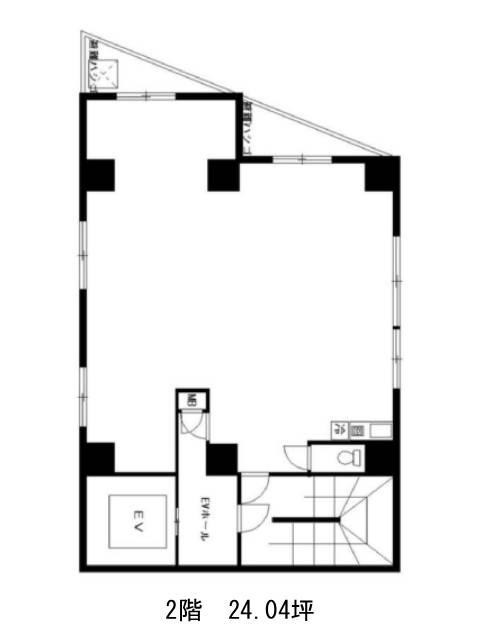
レスポワール池袋のフロア情報
募集階数
2階
面積
24.04坪
賃料+共益費
302,500円
12,584円/坪
保証金
81万円
入居時期
即
更新料
新1ケ月
償却費
なし
礼金
2ケ月
レスポワール池袋
- エレベーター
- 男女共用トイレ
- 新耐震基準
レスポワール池袋のフロア情報
募集階数
2階
面積
24.04坪
賃料+共益費
302,500円
12,584円/坪
保証金
81万円
入居時期
即
更新料
新1ケ月
償却費
なし
礼金
2ケ月
レスポワール池袋の物件情報
レスポワール池袋(豊島区東池袋)は池袋駅徒歩9分、東池袋駅徒歩13分、向原駅徒歩13分の賃貸オフィスです。
レスポワール池袋のアクセス
レスポワール池袋のテナント募集中区画
| 階数 | 面積 | 賃料+共益費 | 保証金 | 入居時期 | 検討 | 図面 | 詳細 |
|---|---|---|---|---|---|---|---|
| 2 | 24.04坪 |
302,500円12,584円/坪
|
81万円
|
即 |


