オカバ錦糸町ビルⅡ3階の貸事務所・賃貸オフィス情報
オカバ錦糸町ビルⅡ3階の賃貸オフィス・貸事務所情報
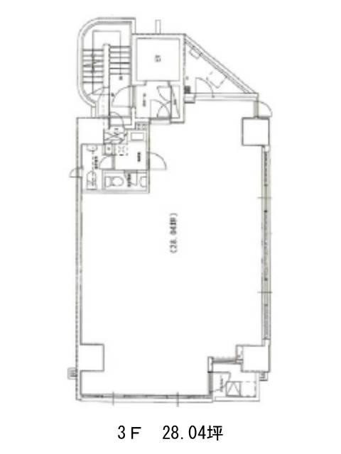
オカバ錦糸町ビルⅡのフロア情報
募集階数
3階
面積
28.04坪
賃料+共益費
370,128円
13,200円/坪
保証金
274万円
入居時期
2026年9月中旬
更新料
新1ケ月
償却費
2ケ月
礼金
なし
オカバ錦糸町ビルⅡ
- エレベーター
- 個別空調
- 男女別トイレ
- 新耐震基準
オカバ錦糸町ビルⅡのフロア情報
募集階数
3階
面積
28.04坪
賃料+共益費
370,128円
13,200円/坪
保証金
274万円
入居時期
2026年9月中旬
更新料
新1ケ月
償却費
2ケ月
礼金
なし
オカバ錦糸町ビルⅡの物件情報
オカバ錦糸町ビルⅡ(墨田区江東橋)は錦糸町駅徒歩5分、住吉駅徒歩11分、亀戸駅徒歩12分の賃貸オフィスです。
オカバ錦糸町ビルⅡのアクセス
オカバ錦糸町ビルⅡのテナント募集中区画
| 階数 | 面積 | 賃料+共益費 | 保証金 | 入居時期 | 検討 | 図面 | 詳細 |
|---|---|---|---|---|---|---|---|
| 3 | 28.04坪 |
370,128円13,200円/坪
|
274万円
|
2026年9月中旬 |


