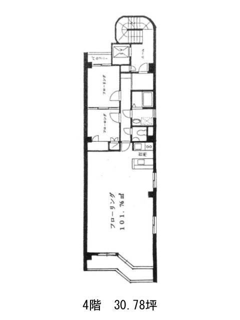
川鍋ビル4階の貸事務所・賃貸オフィス情報
川鍋ビル4階の賃貸オフィス・貸事務所情報
川鍋ビルのフロア情報
募集階数
4階
面積
30.78坪
賃料+共益費
440,000円
14,295円/坪
保証金
125万円
入居時期
即
更新料
新1ケ月
償却費
20%
礼金
なし
川鍋ビル
- エレベーター
- 男女共用トイレ
- 新耐震基準
川鍋ビルのフロア情報
募集階数
4階
面積
30.78坪
賃料+共益費
440,000円
14,295円/坪
保証金
125万円
入居時期
即
更新料
新1ケ月
償却費
20%
礼金
なし
川鍋ビルの物件情報
川鍋ビル(目黒区上目黒)は中目黒駅徒歩4分、祐天寺駅徒歩12分、代官山駅徒歩12分の賃貸オフィスです。
川鍋ビルのアクセス
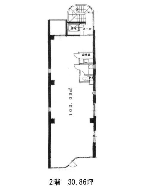
川鍋ビルのテナント募集中区画
| 階数 | 面積 | 賃料+共益費 | 保証金 | 入居時期 | 検討 | 図面 | 詳細 |
|---|---|---|---|---|---|---|---|
| 2 | 30.86坪 |
462,000円14,972円/坪
|
132万円
|
即 | |||
| 4 | 30.78坪 |
440,000円14,295円/坪
|
125万円
|
即 |


