品川駅前港南ビルの貸事務所・賃貸オフィス情報
品川駅前港南ビルの貸事務所・賃貸オフィス情報
品川駅前港南ビル
- 物件番号
- 123-00041
- 所在地
- 東京都港区港南2-14-10
- 竣工
- 2001年7月
- 規模
- 地上10階/地下1階
- エレベーター
- 個別空調
- 新耐震基準
品川駅前港南ビルの空室フロアリスト
| 階数 | 面積 | 賃料+共益費 | 保証金 | 入居時期 | 更新料 | 償却費 | 礼金 | 検討 | 平面図 | 詳細 |
|---|---|---|---|---|---|---|---|---|---|---|
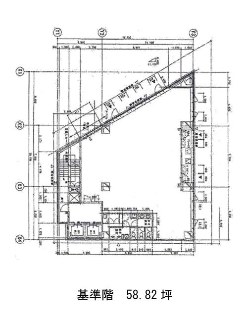
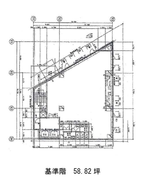
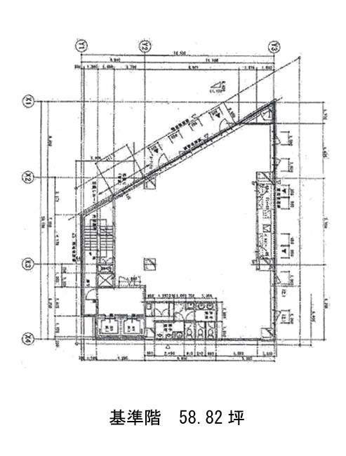
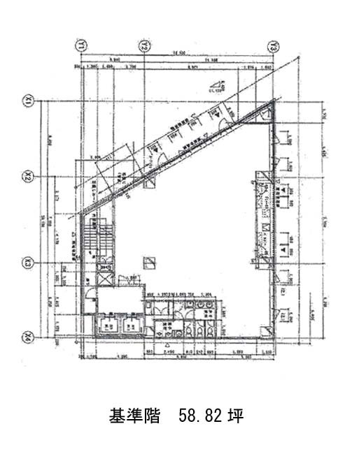
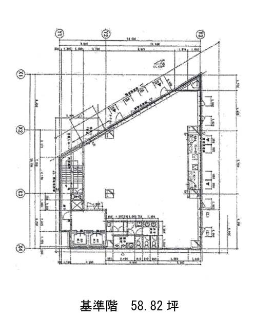
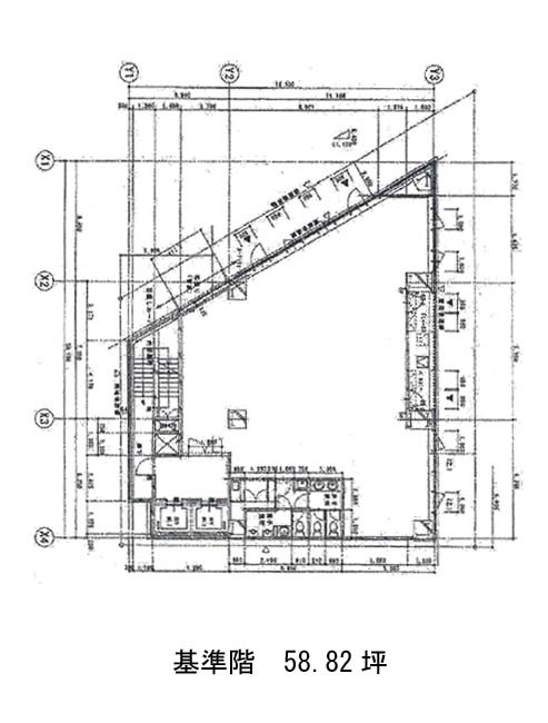
| 8 | 58.82坪 |
応相談応相談
|
応相談
|
2026年9月上旬 | なし | なし | なし |
品川駅前港南ビルの物件情報
品川駅前港南ビル(港区港南)は品川駅徒歩2分、北品川駅徒歩13分の賃貸オフィスです。
品川駅前港南ビルのアクセス
品川駅前港南ビルの条件に近い物件
品川駅前港南ビルの募集終了区画
| 階数 | 面積 | 賃料+共益費 | 保証金 | 入居時期 | 更新料 | 償却費 | 礼金 | 平面図 | 詳細 |
|---|---|---|---|---|---|---|---|---|---|
| 4 | 58.82坪 | − | − | 募集終了 | − | − | − | ||
| 5 | 58.82坪 | − | − | 募集終了 | − | − | − | ||
| 6 | 58.82坪 | − | − | 募集終了 | − | − | − | ||
| 7 | 58.82坪 | − | − | 募集終了 | − | − | − | ||
| 8 | 44.00坪 | − | − | 募集終了 | − | − | − | ||
| 9 | 58.82坪 | − | − | 募集終了 | − | − | − | ||
| 10 | 58.82坪 | − | − | 募集終了 | − | − | − |


