A-PLACE品川の貸事務所・賃貸オフィス情報
A-PLACE品川の貸事務所・賃貸オフィス情報
A-PLACE品川
- エレベーター
- 個別空調
- 駐車場
- 新耐震基準
A-PLACE品川の空室フロアリスト
| 階数 | 面積 | 賃料+共益費 | 保証金 | 入居時期 | 更新料 | 償却費 | 礼金 | 検討 | 平面図 | 詳細 |
|---|---|---|---|---|---|---|---|---|---|---|
| 1 | 66.72坪 |
応相談応相談
|
応相談
|
2026年9月上旬 | なし | なし | なし |
A-PLACE品川の物件情報
A-PLACE品川(港区港南)は品川駅徒歩5分の賃貸オフィスです。
A-PLACE品川のアクセス
A-PLACE品川の条件に近い物件
A-PLACE品川の募集終了区画
| 階数 | 面積 | 賃料+共益費 | 保証金 | 入居時期 | 更新料 | 償却費 | 礼金 | 平面図 | 詳細 |
|---|---|---|---|---|---|---|---|---|---|
| 2 | 100.81坪 | − | − | 募集終了 | − | − | − | ||
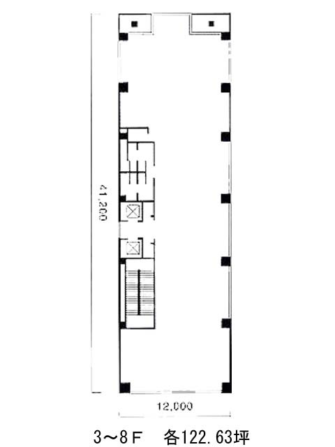
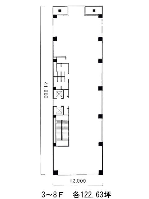
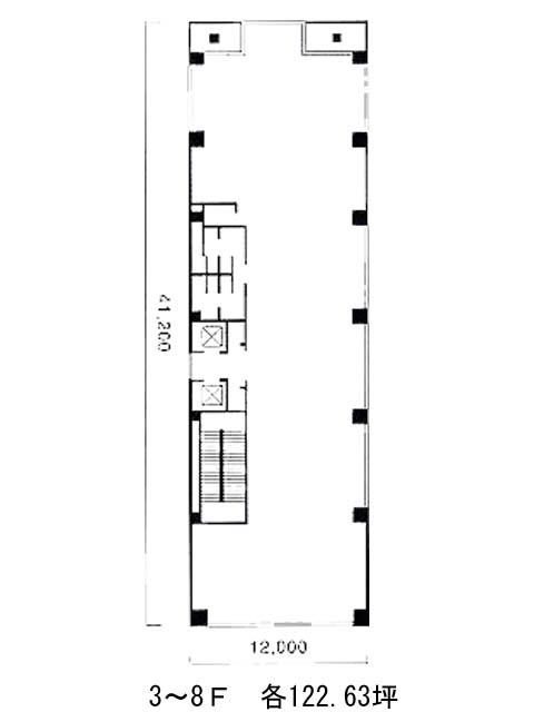
| 3 | 122.63坪 | − | − | 募集終了 | − | − | − | ||
| 4 | 122.63坪 | − | − | 募集終了 | − | − | − | ||
| 5 | 122.63坪 | − | − | 募集終了 | − | − | − | ||
| 6 | 122.63坪 | − | − | 募集終了 | − | − | − | ||
| 7 | 122.63坪 | − | − | 募集終了 | − | − | − | ||
| 8 | 122.63坪 | − | − | 募集終了 | − | − | − |


