FBR三田ビルの貸事務所・賃貸オフィス情報
FBR三田ビルの貸事務所・賃貸オフィス情報
FBR三田ビル
- 物件番号
- 125-00162
- 所在地
- 東京都港区三田4-1-27
- 竣工
- 1993年5月
- 規模
- 地上9階/地下1階
- エレベーター
- 個別空調
- 駐車場
- 新耐震基準
FBR三田ビルの空室フロアリスト
| 階数 | 面積 | 賃料+共益費 | 保証金 | 入居時期 | 更新料 | 償却費 | 礼金 | 検討 | 平面図 | 詳細 |
|---|---|---|---|---|---|---|---|---|---|---|
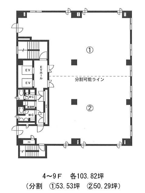
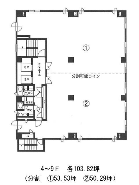
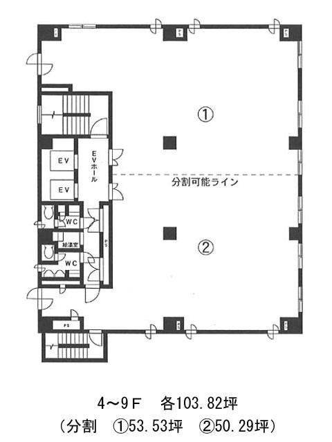
| 9 | 103.82坪 |
応相談応相談
|
応相談
|
2026年12月上旬 | なし | なし | なし |
FBR三田ビルの物件情報
FBR三田ビル(港区三田)は白金高輪駅徒歩9分、三田駅徒歩10分、田町駅徒歩11分の賃貸オフィスです。
FBR三田ビルのアクセス
FBR三田ビルの募集終了区画
| 階数 | 面積 | 賃料+共益費 | 保証金 | 入居時期 | 更新料 | 償却費 | 礼金 | 平面図 | 詳細 |
|---|---|---|---|---|---|---|---|---|---|
| 2 | 57.53坪 | − | − | 募集終了 | − | − | − | ||
| 3 | 103.82坪 | − | − | 募集終了 | − | − | − | ||
| 4 | 103.82坪 | − | − | 募集終了 | − | − | − | ||
| 5 | 103.82坪 | − | − | 募集終了 | − | − | − | ||
| 6 | 56.80坪 | − | − | 募集終了 | − | − | − | ||
| 6 | 60.00坪 | − | − | 募集終了 | − | − | − | ||
| 7 | 103.82坪 | − | − | 募集終了 | − | − | − | ||
| 7 | 56.80坪 | − | − | 募集終了 | − | − | − | ||
| 8 | 103.82坪 | − | − | 募集終了 | − | − | − | ||
| 8 | 53.33坪 | − | − | 募集終了 | − | − | − |


