ASONE白金高輪の貸事務所・賃貸オフィス情報
ASONE白金高輪の貸事務所・賃貸オフィス情報
ASONE白金高輪
- 物件番号
- 125-00069
- 所在地
- 東京都港区三田5-11-14
- 竣工
- 1985年8月
- 規模
- 地上5階/地下1階
- エレベーター
- 個別空調
- 新耐震基準
ASONE白金高輪の空室フロアリスト
| 階数 | 面積 | 賃料+共益費 | 保証金 | 入居時期 | 更新料 | 償却費 | 礼金 | 検討 | 平面図 | 詳細 |
|---|---|---|---|---|---|---|---|---|---|---|
| 4 | 16.64坪 |
253,000円15,205円/坪
|
92万円
|
即 | 新1ケ月 | 1ケ月 | 1ケ月 |
ASONE白金高輪の物件情報
ASONE白金高輪(港区三田)は白金高輪駅徒歩6分、泉岳寺駅徒歩13分、三田駅徒歩13分の賃貸オフィスです。
ASONE白金高輪のアクセス
ASONE白金高輪の募集終了区画
| 階数 | 面積 | 賃料+共益費 | 保証金 | 入居時期 | 更新料 | 償却費 | 礼金 | 平面図 | 詳細 |
|---|---|---|---|---|---|---|---|---|---|
| 地下1 | 27.75坪 | − | − | 募集終了 | − | − | − | ||
| 1 | 17.68坪 | − | − | 募集終了 | − | − | − | ||
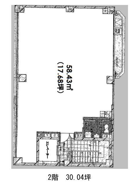
| 2 | 30.04坪 | − | − | 募集終了 | − | − | − | ||
| 3 | 30.07坪 | − | − | 募集終了 | − | − | − |


