高浦ビルの貸事務所・賃貸オフィス情報
高浦ビルの貸事務所・賃貸オフィス情報
高浦ビル
- エレベーター
- 個別空調
- 新耐震基準
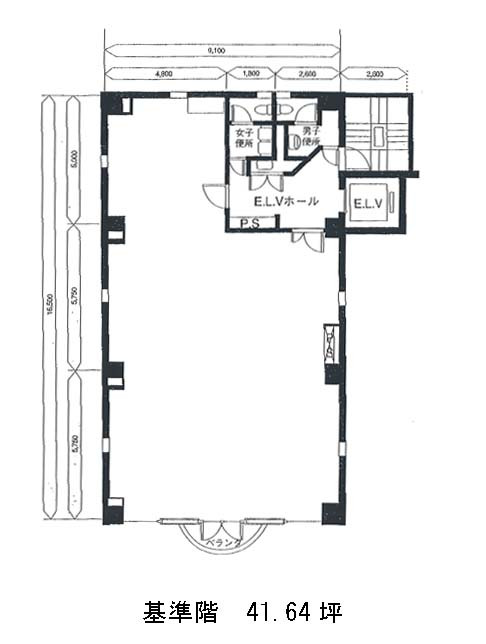
高浦ビルの空室フロアリスト
| 階数 | 面積 | 賃料+共益費 | 保証金 | 入居時期 | 更新料 | 償却費 | 礼金 | 検討 | 平面図 | 詳細 |
|---|---|---|---|---|---|---|---|---|---|---|
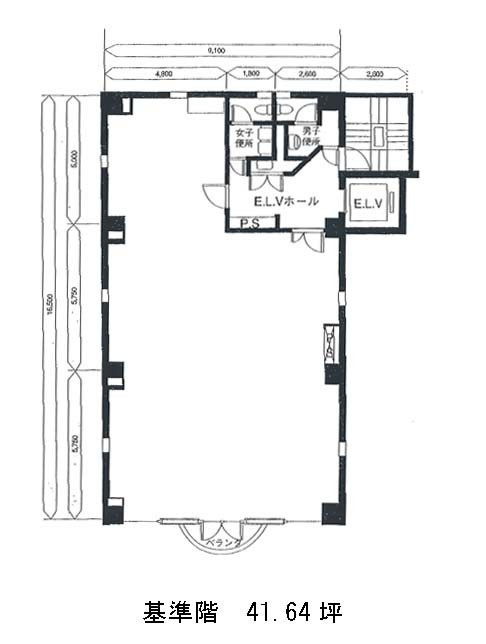
| 2 | 41.64坪 |
618,354円14,850円/坪
|
274万円
|
2026年6月上旬 | なし | なし | 1ケ月 | |||
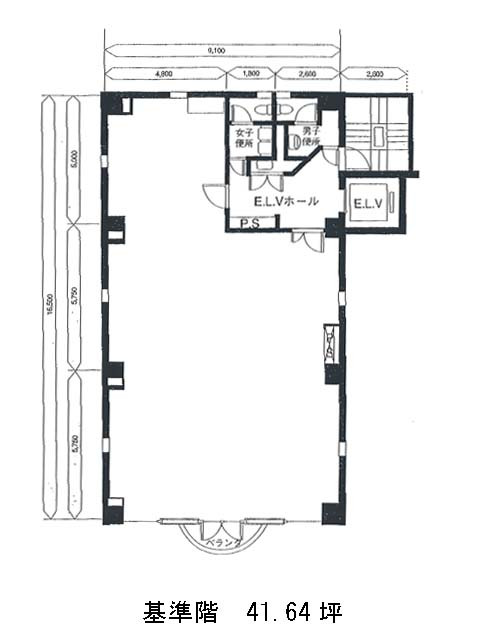
| 8 | 41.64坪 |
618,354円14,850円/坪
|
274万円
|
2026年6月上旬 | なし | なし | 1ケ月 |
高浦ビルの物件情報
高浦ビル(港区芝)は三田駅徒歩6分、芝公園駅徒歩7分、日の出駅徒歩10分の賃貸オフィスです。
高浦ビルのアクセス
高浦ビルの条件に近い物件
高浦ビルの募集終了区画
| 階数 | 面積 | 賃料+共益費 | 保証金 | 入居時期 | 更新料 | 償却費 | 礼金 | 平面図 | 詳細 |
|---|---|---|---|---|---|---|---|---|---|
| 1 | 28.25坪 | − | − | 募集終了 | − | − | − | ||
| 3 | 41.64坪 | − | − | 募集終了 | − | − | − | ||
| 4 | 41.64坪 | − | − | 募集終了 | − | − | − | ||
| 5 | 41.64坪 | − | − | 募集終了 | − | − | − | ||
| 6 | 41.64坪 | − | − | 募集終了 | − | − | − | ||
| 7 | 41.64坪 | − | − | 募集終了 | − | − | − | ||
| 9 | 41.64坪 | − | − | 募集終了 | − | − | − |


