PMO田町の貸事務所・賃貸オフィス情報
PMO田町の貸事務所・賃貸オフィス情報
PMO田町
- 物件番号
- 126-00172
- 所在地
- 東京都港区芝5-31-17
- 竣工
- 2014年2月
- 規模
- 地上12階/地下1階
- エレベーター
- 個別空調
- 駐車場
- 新耐震基準
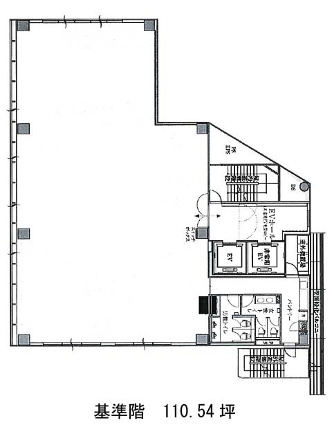
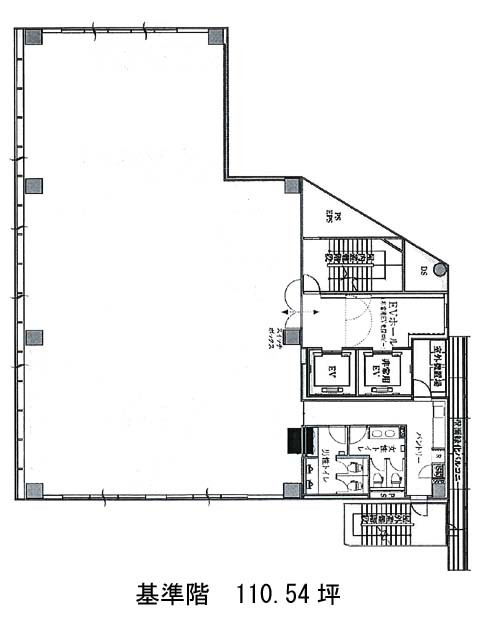
PMO田町の空室フロアリスト
| 階数 | 面積 | 賃料+共益費 | 保証金 | 入居時期 | 更新料 | 償却費 | 礼金 | 検討 | 平面図 | 詳細 |
|---|---|---|---|---|---|---|---|---|---|---|
| 11 | 110.54坪 |
応相談応相談
|
応相談
|
2026年3月上旬 | なし | なし | なし |
PMO田町の物件情報
PMO田町(港区芝)は三田駅徒歩1分、田町駅徒歩3分、芝公園駅徒歩10分の賃貸オフィスです。
PMO田町のアクセス
PMO田町の募集終了区画
| 階数 | 面積 | 賃料+共益費 | 保証金 | 入居時期 | 更新料 | 償却費 | 礼金 | 平面図 | 詳細 |
|---|---|---|---|---|---|---|---|---|---|
| 2 | 110.54坪 | − | − | 募集終了 | − | − | − | ||
| 3 | 110.54坪 | − | − | 募集終了 | − | − | − | ||
| 4 | 110.54坪 | − | − | 募集終了 | − | − | − | ||
| 5 | 110.54坪 | − | − | 募集終了 | − | − | − | ||
| 6 | 110.54坪 | − | − | 募集終了 | − | − | − | ||
| 7 | 110.54坪 | − | − | 募集終了 | − | − | − | ||
| 8 | 110.54坪 | − | − | 募集終了 | − | − | − | ||
| 9 | 110.54坪 | − | − | 募集終了 | − | − | − | ||
| 10 | 110.54坪 | − | − | 募集終了 | − | − | − |


