芝阿部ビルの貸事務所・賃貸オフィス情報
芝阿部ビルの貸事務所・賃貸オフィス情報
芝阿部ビル
- エレベーター
- 個別空調
- 新耐震基準
芝阿部ビルの空室フロアリスト
| 階数 | 面積 | 賃料+共益費 | 保証金 | 入居時期 | 更新料 | 償却費 | 礼金 | 検討 | 平面図 | 詳細 |
|---|---|---|---|---|---|---|---|---|---|---|
| 1 | 21.62坪 |
380,512円17,600円/坪
|
207万円
|
即 | 新1ケ月 | 2ケ月 | なし |
芝阿部ビルの物件情報
芝阿部ビル(港区芝)は三田駅徒歩6分、芝公園駅徒歩6分、田町駅徒歩10分の賃貸オフィスです。
芝阿部ビルのアクセス
芝阿部ビルの条件に近い物件
芝阿部ビルの募集終了区画
| 階数 | 面積 | 賃料+共益費 | 保証金 | 入居時期 | 更新料 | 償却費 | 礼金 | 平面図 | 詳細 |
|---|---|---|---|---|---|---|---|---|---|
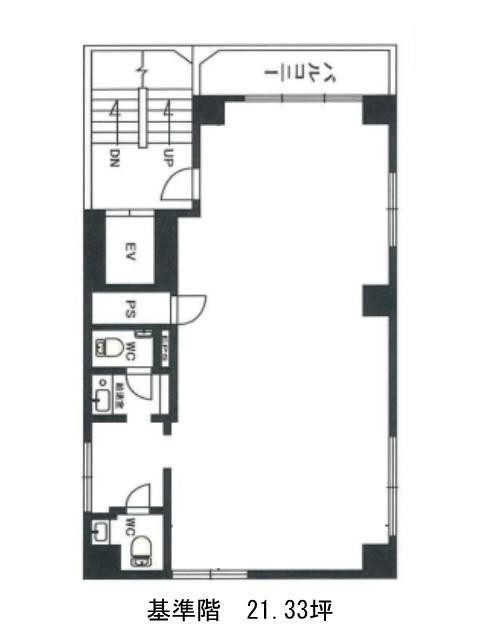
| 3 | 21.33坪 | − | − | 募集終了 | − | − | − | ||
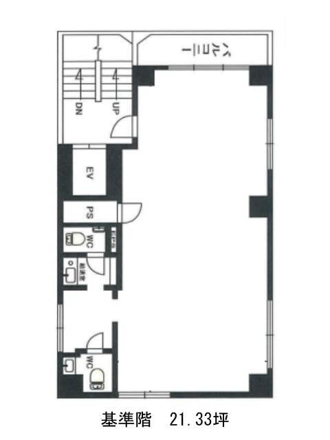
| 4 | 21.33坪 | − | − | 募集終了 | − | − | − |


