加瀬ビル161の貸事務所・賃貸オフィス情報
加瀬ビル161の貸事務所・賃貸オフィス情報
加瀬ビル161
- エレベーター
- 個別空調
- 新耐震基準
加瀬ビル161の空室フロアリスト
| 階数 | 面積 | 賃料+共益費 | 保証金 | 入居時期 | 更新料 | 償却費 | 礼金 | 検討 | 平面図 | 詳細 |
|---|---|---|---|---|---|---|---|---|---|---|
| 3 | 38.30坪 |
517,000円13,500円/坪
|
135万円
|
即 | 新1ケ月 | 1ケ月 | 1ケ月 |
加瀬ビル161の物件情報
加瀬ビル161(港区芝浦)は田町駅徒歩8分、芝浦ふ頭駅徒歩10分、三田駅徒歩12分の賃貸オフィスです。
加瀬ビル161のアクセス
加瀬ビル161の条件に近い物件
加瀬ビル161の募集終了区画
| 階数 | 面積 | 賃料+共益費 | 保証金 | 入居時期 | 更新料 | 償却費 | 礼金 | 平面図 | 詳細 |
|---|---|---|---|---|---|---|---|---|---|
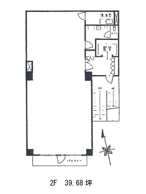
| 2 | 39.68坪 | − | − | 募集終了 | − | − | − | ||
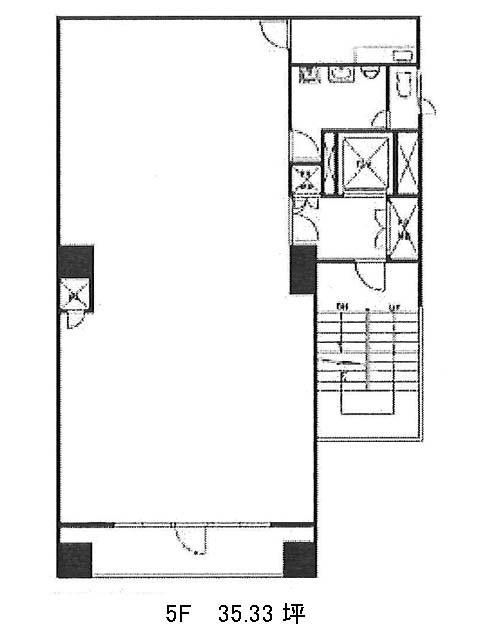
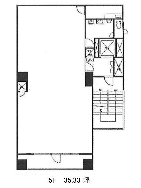
| 4 | 35.33坪 | − | − | 募集終了 | − | − | − | ||
| 5 | 35.33坪 | − | − | 募集終了 | − | − | − |


