BR芝浦Nの貸事務所・賃貸オフィス情報
BR芝浦Nの貸事務所・賃貸オフィス情報
BR芝浦N
- エレベーター
- 個別空調
- 駐車場
- 新耐震基準
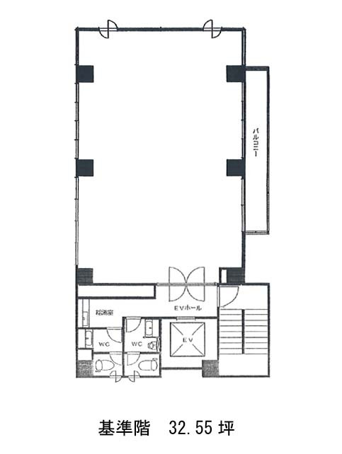
BR芝浦Nの空室フロアリスト
| 階数 | 面積 | 賃料+共益費 | 保証金 | 入居時期 | 更新料 | 償却費 | 礼金 | 検討 | 平面図 | 詳細 |
|---|---|---|---|---|---|---|---|---|---|---|
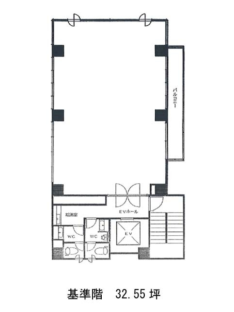
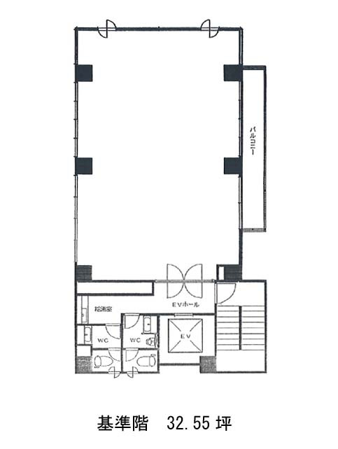
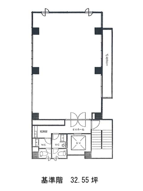
| 2 | 32.55坪 |
応相談応相談
|
応相談
|
即 | 新1ケ月 | 2ケ月 | なし |
BR芝浦Nの物件情報
BR芝浦N(港区芝浦)は田町駅徒歩8分、三田駅徒歩9分、芝浦ふ頭駅徒歩15分の賃貸オフィスです。
BR芝浦Nのアクセス
BR芝浦Nの条件に近い物件
BR芝浦Nの募集終了区画
| 階数 | 面積 | 賃料+共益費 | 保証金 | 入居時期 | 更新料 | 償却費 | 礼金 | 平面図 | 詳細 |
|---|---|---|---|---|---|---|---|---|---|
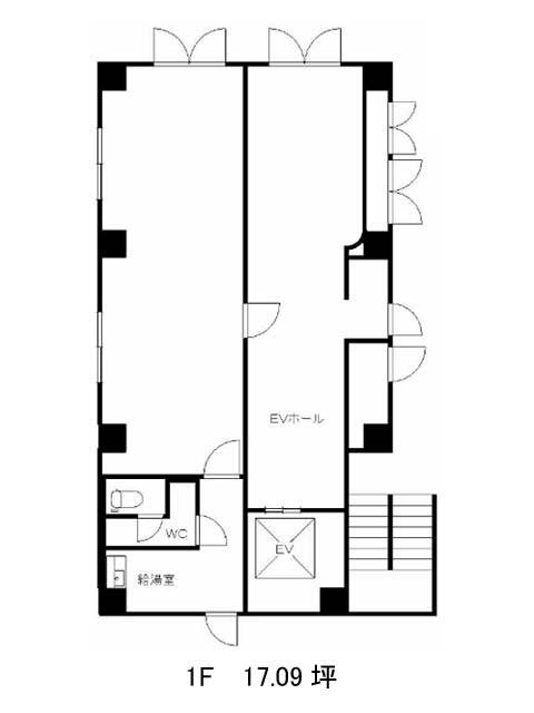
| 1 | 17.09坪 | − | − | 募集終了 | − | − | − | ||
| 4 | 32.55坪 | − | − | 募集終了 | − | − | − | ||
| 5 | 32.55坪 | − | − | 募集終了 | − | − | − | ||
| 6 | 32.55坪 | − | − | 募集終了 | − | − | − | ||
| 7 | 32.55坪 | − | − | 募集終了 | − | − | − |


