中根ビルの貸事務所・賃貸オフィス情報
中根ビルの貸事務所・賃貸オフィス情報
中根ビル
- エレベーター
- 耐震補強済み
中根ビルの空室フロアリスト
| 階数 | 面積 | 賃料+共益費 | 保証金 | 入居時期 | 更新料 | 償却費 | 礼金 | 検討 | 平面図 | 詳細 |
|---|---|---|---|---|---|---|---|---|---|---|
| 6 | 18.83坪 |
372,832円19,800円/坪
|
225万円
|
即 | 旧1ケ月 | 2ケ月 | なし |
中根ビルの物件情報
中根ビル(港区芝大門)は大門駅徒歩1分、浜松町駅徒歩4分、モノレール浜松町駅徒歩5分の賃貸オフィスです。
中根ビルのアクセス
中根ビルの条件に近い物件
中根ビルの募集終了区画
| 階数 | 面積 | 賃料+共益費 | 保証金 | 入居時期 | 更新料 | 償却費 | 礼金 | 平面図 | 詳細 |
|---|---|---|---|---|---|---|---|---|---|
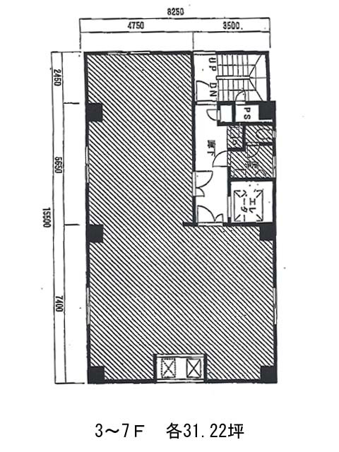
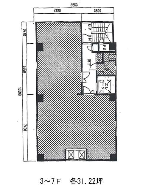
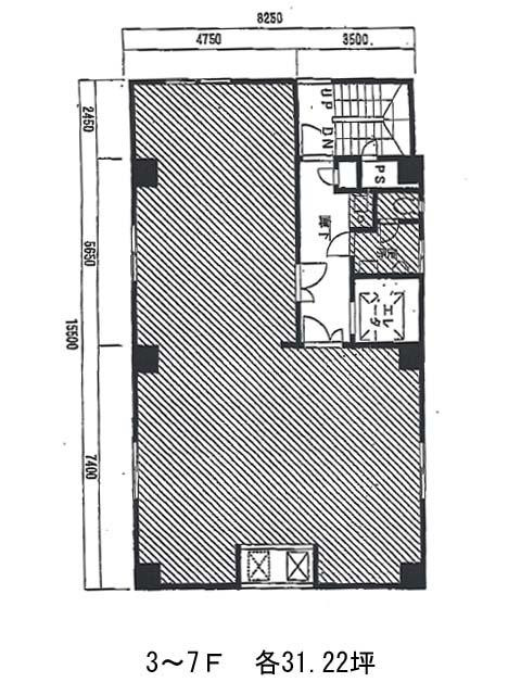
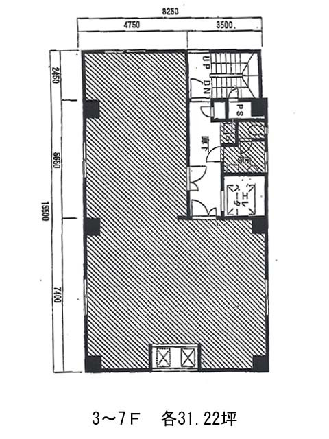
| 3 | 31.22坪 | − | − | 募集終了 | − | − | − | ||
| 3 | 18.83坪 | − | − | 募集終了 | − | − | − | ||
| 4 | 31.22坪 | − | − | 募集終了 | − | − | − | ||
| 5 | 18.83坪 | − | − | 募集終了 | − | − | − | ||
| 6 | 31.22坪 | − | − | 募集終了 | − | − | − | ||
| 7 | 31.22坪 | − | − | 募集終了 | − | − | − | ||
| 8 | 18.83坪 | − | − | 募集終了 | − | − | − |


