サイビルディングの貸事務所・賃貸オフィス情報
サイビルディングの貸事務所・賃貸オフィス情報
サイビルディング
- エレベーター
- 新耐震基準
サイビルディングの空室フロアリスト
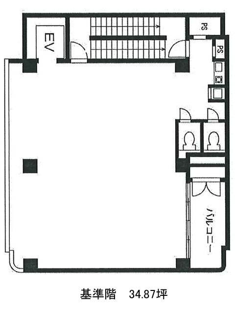
| 階数 | 面積 | 賃料+共益費 | 保証金 | 入居時期 | 更新料 | 償却費 | 礼金 | 検討 | 平面図 | 詳細 |
|---|---|---|---|---|---|---|---|---|---|---|
| 2 | 34.87坪 |
803,004円23,028円/坪
|
730万円
|
相談 | 新1ケ月 | 2ケ月 | 1ケ月 |
サイビルディングの物件情報
サイビルディング(港区西麻布)は六本木駅徒歩3分、乃木坂駅徒歩10分、麻布十番駅徒歩14分の賃貸オフィスです。
サイビルディングのアクセス
サイビルディングの募集終了区画
| 階数 | 面積 | 賃料+共益費 | 保証金 | 入居時期 | 更新料 | 償却費 | 礼金 | 平面図 | 詳細 |
|---|---|---|---|---|---|---|---|---|---|
| 3 | 34.87坪 | − | − | 募集終了 | − | − | − | ||
| 4 | 34.87坪 | − | − | 募集終了 | − | − | − | ||
| 5 | 34.87坪 | − | − | 募集終了 | − | − | − | ||
| 6 | 34.87坪 | − | − | 募集終了 | − | − | − |


