リードシー赤坂の貸事務所・賃貸オフィス情報
リードシー赤坂の貸事務所・賃貸オフィス情報
リードシー赤坂
- 物件番号
- 133-01036
- 所在地
- 東京都港区赤坂2-7-2
- 竣工
- 2019年6月
- 規模
- 地上3階/地下1階
- エレベーター
- 新耐震基準
リードシー赤坂の空室フロアリスト
| 階数 | 面積 | 賃料+共益費 | 保証金 | 入居時期 | 更新料 | 償却費 | 礼金 | 検討 | 平面図 | 詳細 |
|---|---|---|---|---|---|---|---|---|---|---|
| 1 | 18.24坪 |
711,089円38,985円/坪
|
488万円
|
相談 | なし | 1ケ月 | 1ケ月 |
リードシー赤坂の物件情報
リードシー赤坂(港区赤坂)は溜池山王駅徒歩3分、赤坂駅徒歩5分、国会議事堂前駅徒歩5分の賃貸オフィスです。
リードシー赤坂のアクセス
リードシー赤坂の募集終了区画
| 階数 | 面積 | 賃料+共益費 | 保証金 | 入居時期 | 更新料 | 償却費 | 礼金 | 平面図 | 詳細 |
|---|---|---|---|---|---|---|---|---|---|
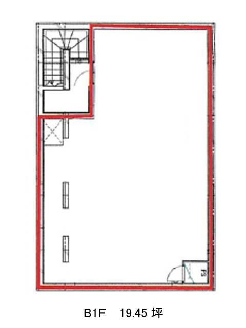
| 地下1 | 19.45坪 | − | − | 募集終了 | − | − | − | ||
| 2 | 19.33坪 | − | − | 募集終了 | − | − | − | ||
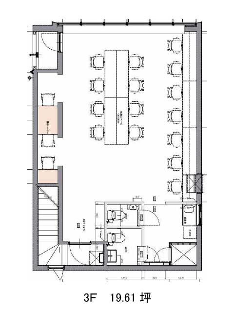
| 3 | 19.61坪 | − | − | 募集終了 | − | − | − |


