Aフロント浜松町の貸事務所・賃貸オフィス情報
Aフロント浜松町の貸事務所・賃貸オフィス情報
Aフロント浜松町
- エレベーター
- 個別空調
- 新耐震基準
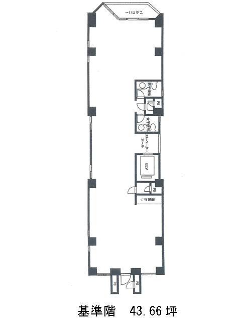
Aフロント浜松町の空室フロアリスト
| 階数 | 面積 | 賃料+共益費 | 保証金 | 入居時期 | 更新料 | 償却費 | 礼金 | 検討 | 平面図 | 詳細 |
|---|---|---|---|---|---|---|---|---|---|---|
| 5 | 43.66坪 |
応相談応相談
|
応相談
|
2026年8月上旬 | 新1ケ月 | 1ケ月 | なし |
Aフロント浜松町の物件情報
Aフロント浜松町(港区浜松町)は大門駅徒歩1分、浜松町駅徒歩4分、モノレール浜松町駅徒歩5分の賃貸オフィスです。
Aフロント浜松町のアクセス
Aフロント浜松町の条件に近い物件
Aフロント浜松町の募集終了区画
| 階数 | 面積 | 賃料+共益費 | 保証金 | 入居時期 | 更新料 | 償却費 | 礼金 | 平面図 | 詳細 |
|---|---|---|---|---|---|---|---|---|---|
| 2 | 43.66坪 | − | − | 募集終了 | − | − | − | ||
| 3 | 43.66坪 | − | − | 募集終了 | − | − | − | ||
| 4 | 43.66坪 | − | − | 募集終了 | − | − | − | ||
| 6 | 43.66坪 | − | − | 募集終了 | − | − | − | ||
| 7 | 43.66坪 | − | − | 募集終了 | − | − | − | ||
| 8 | 43.66坪 | − | − | 募集終了 | − | − | − | ||
| 9 | 36.85坪 | − | − | 募集終了 | − | − | − | ||
| 10 | 28.06坪 | − | − | 募集終了 | − | − | − |


