マガジンハウス六本木ビルの貸事務所・賃貸オフィス情報
マガジンハウス六本木ビルの貸事務所・賃貸オフィス情報
マガジンハウス六本木ビル
- 物件番号
- 147-00174
- 所在地
- 東京都港区六本木5-2-3
- 竣工
- 1990年12月
- 規模
- 地上9階
- エレベーター
- 個別空調
- 新耐震基準
マガジンハウス六本木ビルの空室フロアリスト
| 階数 | 面積 | 賃料+共益費 | 保証金 | 入居時期 | 更新料 | 償却費 | 礼金 | 検討 | 平面図 | 詳細 |
|---|---|---|---|---|---|---|---|---|---|---|
| 2 | 45.06坪 |
応相談応相談
|
応相談
|
即 | 新1ケ月 | 10% | なし |
マガジンハウス六本木ビルの物件情報
マガジンハウス六本木ビル(港区六本木)は六本木駅徒歩3分、六本木一丁目駅徒歩9分、乃木坂駅徒歩11分の賃貸オフィスです。
マガジンハウス六本木ビルのアクセス
マガジンハウス六本木ビルの条件に近い物件
マガジンハウス六本木ビルの募集終了区画
| 階数 | 面積 | 賃料+共益費 | 保証金 | 入居時期 | 更新料 | 償却費 | 礼金 | 平面図 | 詳細 |
|---|---|---|---|---|---|---|---|---|---|
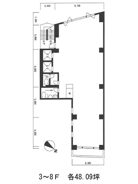
| 3 | 48.09坪 | − | − | 募集終了 | − | − | − | ||
| 4 | 48.09坪 | − | − | 募集終了 | − | − | − | ||
| 5 | 48.09坪 | − | − | 募集終了 | − | − | − | ||
| 6 | 48.09坪 | − | − | 募集終了 | − | − | − | ||
| 7 | 48.09坪 | − | − | 募集終了 | − | − | − | ||
| 8 | 48.09坪 | − | − | 募集終了 | − | − | − | ||
| 9 | 35.22坪 | − | − | 募集終了 | − | − | − |


