ミクニ六本木ビルの貸事務所・賃貸オフィス情報
ミクニ六本木ビルの貸事務所・賃貸オフィス情報
ミクニ六本木ビル
- 物件番号
- 147-00234
- 所在地
- 東京都港区六本木7-8-8
- 竣工
- 1985年6月
- 規模
- 地上10階/地下1階
- エレベーター
- 個別空調
- 新耐震基準
ミクニ六本木ビルの空室フロアリスト
| 階数 | 面積 | 賃料+共益費 | 保証金 | 入居時期 | 更新料 | 償却費 | 礼金 | 検討 | 平面図 | 詳細 |
|---|---|---|---|---|---|---|---|---|---|---|
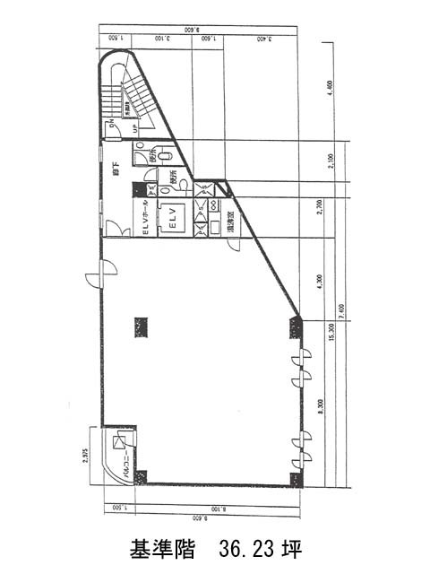
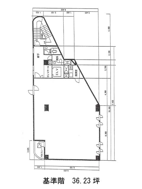
| 7 | 36.23坪 |
1,036,176円28,600円/坪
|
666万円
|
2026年6月上旬 | 新1ケ月 | 2ケ月 | なし |
ミクニ六本木ビルの物件情報
ミクニ六本木ビル(港区六本木)は六本木駅徒歩2分、乃木坂駅徒歩5分、六本木一丁目駅徒歩12分の賃貸オフィスです。
ミクニ六本木ビルのアクセス
ミクニ六本木ビルの条件に近い物件
ミクニ六本木ビルの募集終了区画
| 階数 | 面積 | 賃料+共益費 | 保証金 | 入居時期 | 更新料 | 償却費 | 礼金 | 平面図 | 詳細 |
|---|---|---|---|---|---|---|---|---|---|
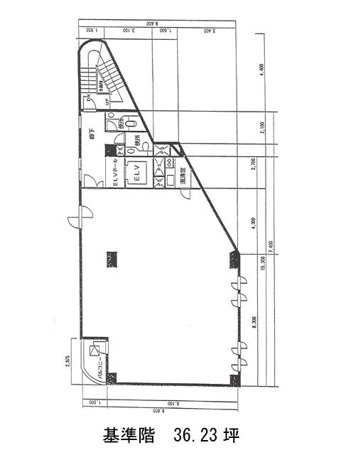
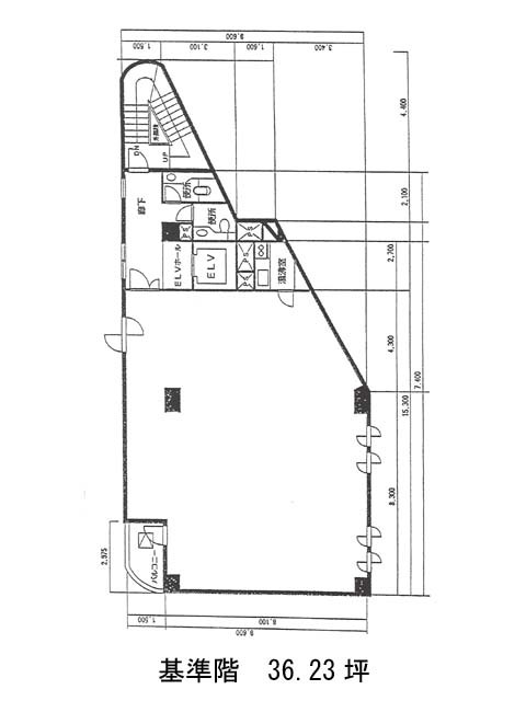
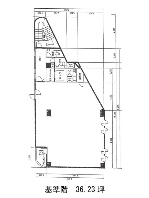
| 3 | 36.23坪 | − | − | 募集終了 | − | − | − | ||
| 4 | 36.23坪 | − | − | 募集終了 | − | − | − | ||
| 5 | 36.23坪 | − | − | 募集終了 | − | − | − | ||
| 6 | 36.23坪 | − | − | 募集終了 | − | − | − | ||
| 8 | 36.23坪 | − | − | 募集終了 | − | − | − |


