六本木三幸ビルの貸事務所・賃貸オフィス情報
六本木三幸ビルの貸事務所・賃貸オフィス情報
六本木三幸ビル
- 物件番号
- 147-00583
- 所在地
- 東京都港区六本木3-4-35
- 竣工
- 2021年10月
- 規模
- 地上9階
- エレベーター
- 個別空調
- 新耐震基準
六本木三幸ビルの空室フロアリスト
| 階数 | 面積 | 賃料+共益費 | 保証金 | 入居時期 | 更新料 | 償却費 | 礼金 | 検討 | 平面図 | 詳細 |
|---|---|---|---|---|---|---|---|---|---|---|
| 1 | 47.57坪 |
1,831,445円38,500円/坪
|
1664万円
|
相談 | 新1ケ月 | なし | 2ケ月 | |||
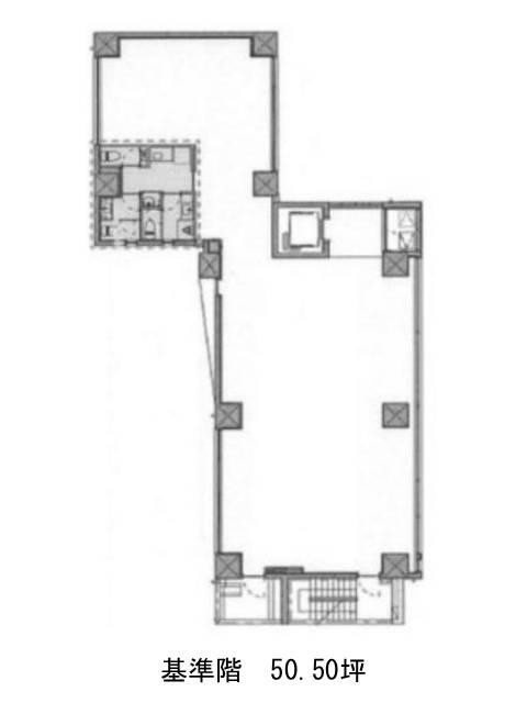
| 4 | 50.50坪 |
968,000円19,168円/坪
|
528万円
|
2026年4月上旬 | 新1ケ月 | なし | 2ケ月 | |||
| 5 | 50.50坪 |
968,000円19,168円/坪
|
528万円
|
2026年4月中旬 | 新1ケ月 | なし | 2ケ月 |
六本木三幸ビルの物件情報
六本木三幸ビル(港区六本木)は六本木一丁目駅徒歩3分、六本木駅徒歩6分、溜池山王駅徒歩9分の賃貸オフィスです。
六本木三幸ビルのアクセス
六本木三幸ビルの募集終了区画
| 階数 | 面積 | 賃料+共益費 | 保証金 | 入居時期 | 更新料 | 償却費 | 礼金 | 平面図 | 詳細 |
|---|---|---|---|---|---|---|---|---|---|
| 2 | 50.50坪 | − | − | 募集終了 | − | − | − | ||
| 3 | 50.50坪 | − | − | 募集終了 | − | − | − | ||
| 6 | 50.50坪 | − | − | 募集終了 | − | − | − | ||
| 7 | 50.50坪 | − | − | 募集終了 | − | − | − | ||
| 8 | 50.50坪 | − | − | 募集終了 | − | − | − | ||
| 9 | 33.76坪 | − | − | 募集終了 | − | − | − |


