CATビルの貸事務所・賃貸オフィス情報
CATビルの貸事務所・賃貸オフィス情報
CATビル
- エレベーター
- 駐車場
- 新耐震基準
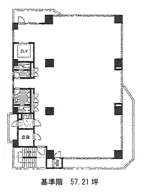
CATビルの空室フロアリスト
| 階数 | 面積 | 賃料+共益費 | 保証金 | 入居時期 | 更新料 | 償却費 | 礼金 | 検討 | 平面図 | 詳細 |
|---|---|---|---|---|---|---|---|---|---|---|
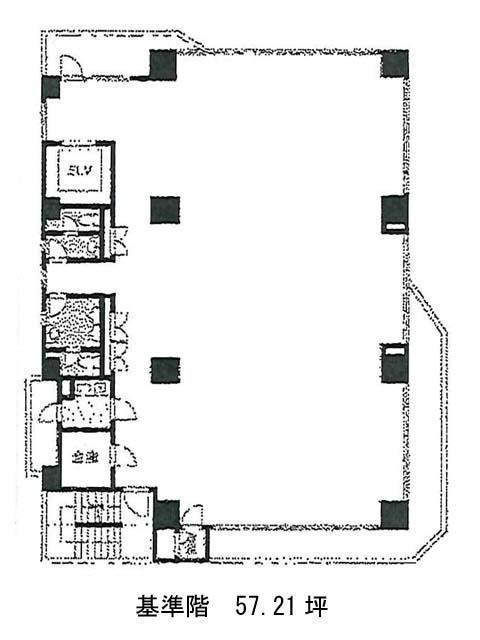
| 8 | 57.21坪 |
1,544,671円27,001円/坪
|
1430万円
|
2026年6月上旬 | 新1ケ月 | 30% | 1ケ月 |
CATビルの物件情報
CATビル(渋谷区恵比寿西)は恵比寿駅徒歩6分、代官山駅徒歩9分、渋谷駅徒歩10分の賃貸オフィスです。
CATビルのアクセス
CATビルの募集終了区画
| 階数 | 面積 | 賃料+共益費 | 保証金 | 入居時期 | 更新料 | 償却費 | 礼金 | 平面図 | 詳細 |
|---|---|---|---|---|---|---|---|---|---|
| 1 | 52.58坪 | − | − | 募集終了 | − | − | − | ||
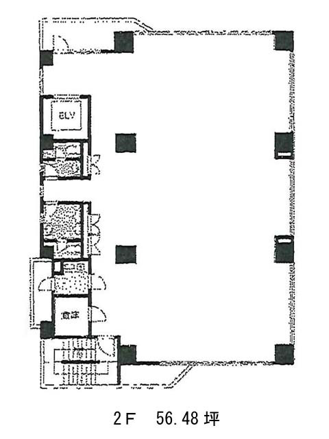
| 2 | 56.48坪 | − | − | 募集終了 | − | − | − | ||
| 3 | 57.21坪 | − | − | 募集終了 | − | − | − | ||
| 4 | 57.21坪 | − | − | 募集終了 | − | − | − | ||
| 5 | 57.21坪 | − | − | 募集終了 | − | − | − | ||
| 6 | 57.21坪 | − | − | 募集終了 | − | − | − | ||
| 7 | 57.21坪 | − | − | 募集終了 | − | − | − | ||
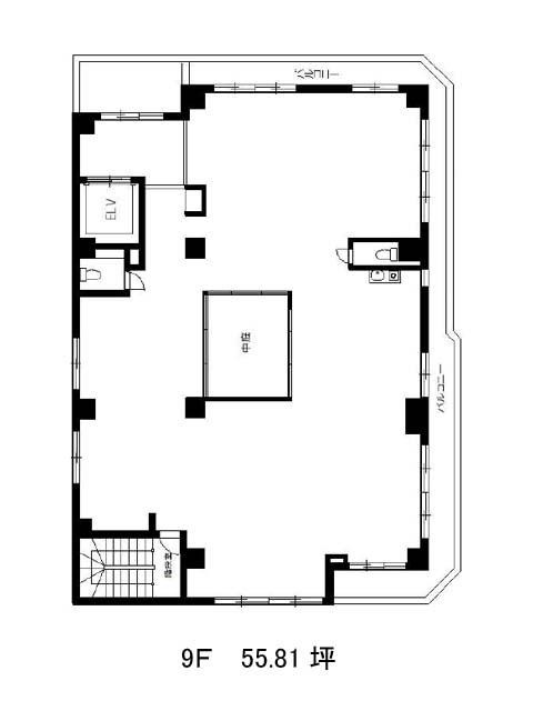
| 9 | 55.78坪 | − | − | 募集終了 | − | − | − |


