東新産業ビルの貸事務所・賃貸オフィス情報
東新産業ビルの貸事務所・賃貸オフィス情報
東新産業ビル
- エレベーター
- 駐車場
- 新耐震基準
東新産業ビルの空室フロアリスト
| 階数 | 面積 | 賃料+共益費 | 保証金 | 入居時期 | 更新料 | 償却費 | 礼金 | 検討 | 平面図 | 詳細 |
|---|---|---|---|---|---|---|---|---|---|---|
| 2 | 64.00坪 |
1,126,400円17,600円/坪
|
832万円
|
即 | 新1ケ月 | 10% | なし |
東新産業ビルの物件情報
東新産業ビル(渋谷区恵比寿西)は恵比寿駅徒歩5分、代官山駅徒歩9分、渋谷駅徒歩11分の賃貸オフィスです。
東新産業ビルのアクセス
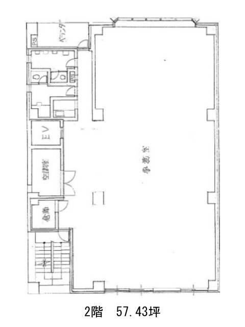
東新産業ビルの募集終了区画
| 階数 | 面積 | 賃料+共益費 | 保証金 | 入居時期 | 更新料 | 償却費 | 礼金 | 平面図 | 詳細 |
|---|---|---|---|---|---|---|---|---|---|
| 2 | 57.43坪 | − | − | 募集終了 | − | − | − | ||
| 3 | 64.00坪 | − | − | 募集終了 | − | − | − |


