現在、空室がございません。
六美(ムツミ)ビルの貸事務所・賃貸オフィス情報
六美(ムツミ)ビルの貸事務所・賃貸オフィス情報
六美(ムツミ)ビル
- 物件番号
- 175-00226
- 所在地
- 東京都渋谷区千駄ヶ谷3-20-1
- 竣工
- 1985年4月
- 規模
- 地上4階/地下1階
- 個別空調
- 駐車場
- 新耐震基準
六美(ムツミ)ビルの空室フロアリスト
現在、空室がございません。
六美(ムツミ)ビルの物件情報
六美(ムツミ)ビル(渋谷区千駄ヶ谷)は北参道駅徒歩6分、国立競技場駅徒歩8分、千駄ヶ谷駅徒歩9分の賃貸オフィスです。
六美(ムツミ)ビルのアクセス
六美(ムツミ)ビルの募集終了区画
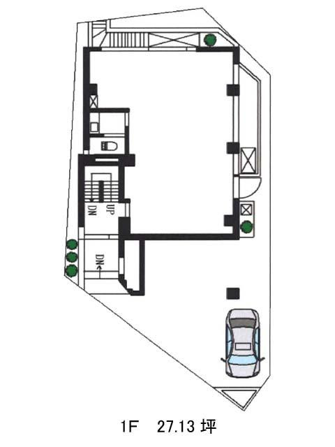
| 階数 | 面積 | 賃料+共益費 | 保証金 | 入居時期 | 更新料 | 償却費 | 礼金 | 平面図 | 詳細 |
|---|---|---|---|---|---|---|---|---|---|
| 地下1 | 31.57坪 | − | − | 募集終了 | − | − | − | ||
| 0 | 58.61坪 | − | − | 募集終了 | − | − | − | ||
| 1 | 27.13坪 | − | − | 募集終了 | − | − | − | ||
| 2 | 43.23坪 | − | − | 募集終了 | − | − | − |


