幡ヶ谷ニューセンタービルの貸事務所・賃貸オフィス情報
幡ヶ谷ニューセンタービルの貸事務所・賃貸オフィス情報
幡ヶ谷ニューセンタービル
- エレベーター
- 個別空調
- 新耐震基準
幡ヶ谷ニューセンタービルの空室フロアリスト
| 階数 | 面積 | 賃料+共益費 | 保証金 | 入居時期 | 更新料 | 償却費 | 礼金 | 検討 | 平面図 | 詳細 |
|---|---|---|---|---|---|---|---|---|---|---|
| 7 | 31.35坪 |
534,517円17,050円/坪
|
225万円
|
即 | 新1ケ月 | あり | 1ケ月 |
幡ヶ谷ニューセンタービルの物件情報
幡ヶ谷ニューセンタービル(渋谷区幡ヶ谷)は幡ヶ谷駅徒歩2分、初台駅徒歩12分、笹塚駅徒歩13分の賃貸オフィスです。
幡ヶ谷ニューセンタービルのアクセス
幡ヶ谷ニューセンタービルの募集終了区画
| 階数 | 面積 | 賃料+共益費 | 保証金 | 入居時期 | 更新料 | 償却費 | 礼金 | 平面図 | 詳細 |
|---|---|---|---|---|---|---|---|---|---|
| 2 | 55.55坪 | − | − | 募集終了 | − | − | − | ||
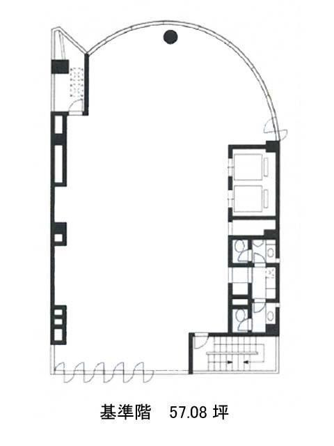
| 3 | 57.08坪 | − | − | 募集終了 | − | − | − | ||
| 6 | 57.08坪 | − | − | 募集終了 | − | − | − | ||
| 7 | 56.58坪 | − | − | 募集終了 | − | − | − | ||
| 8 | 56.58坪 | − | − | 募集終了 | − | − | − | ||
| 9 | 57.08坪 | − | − | 募集終了 | − | − | − | ||
| 10 | 57.08坪 | − | − | 募集終了 | − | − | − |


