MFビルの貸事務所・賃貸オフィス情報
MFビルの貸事務所・賃貸オフィス情報
MFビル
- エレベーター
- 個別空調
- 新耐震基準
MFビルの空室フロアリスト
| 階数 | 面積 | 賃料+共益費 | 保証金 | 入居時期 | 更新料 | 償却費 | 礼金 | 検討 | 平面図 | 詳細 |
|---|---|---|---|---|---|---|---|---|---|---|
| 9 | 19.48坪 |
343,200円17,618円/坪
|
124万円
|
2026年2月中旬 | 新1ケ月 | なし | 2ケ月 |
MFビルの物件情報
MFビル(新宿区高田馬場)は高田馬場駅徒歩2分、西早稲田駅徒歩13分、下落合駅徒歩13分の賃貸オフィスです。
MFビルのアクセス
MFビルの募集終了区画
| 階数 | 面積 | 賃料+共益費 | 保証金 | 入居時期 | 更新料 | 償却費 | 礼金 | 平面図 | 詳細 |
|---|---|---|---|---|---|---|---|---|---|
| 2 | 30.83坪 | − | − | 募集終了 | − | − | − | ||
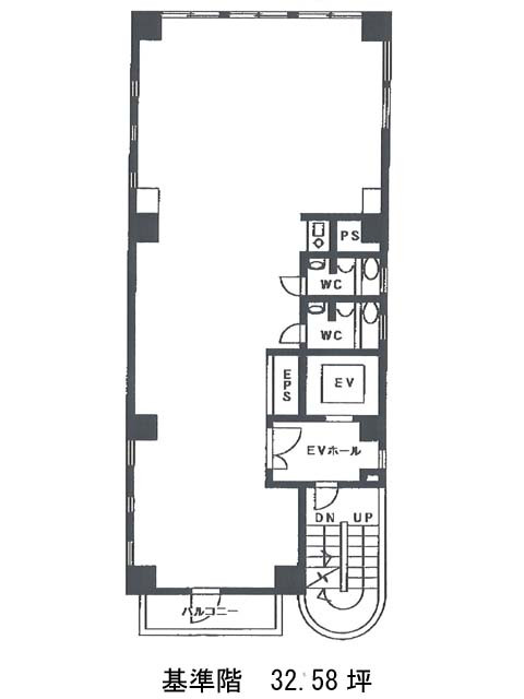
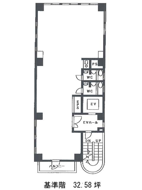
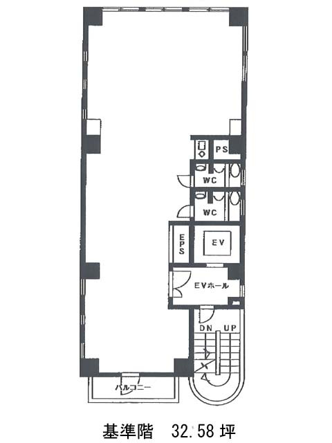
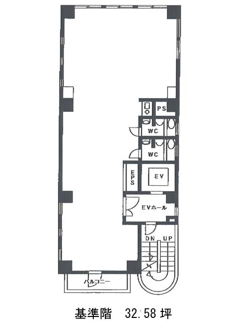
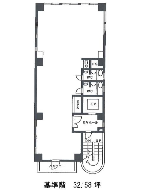
| 4 | 32.58坪 | − | − | 募集終了 | − | − | − | ||
| 5 | 32.58坪 | − | − | 募集終了 | − | − | − | ||
| 6 | 32.58坪 | − | − | 募集終了 | − | − | − | ||
| 7 | 32.58坪 | − | − | 募集終了 | − | − | − | ||
| 8 | 32.58坪 | − | − | 募集終了 | − | − | − |


