現在、空室がございません。
NTビルの貸事務所・賃貸オフィス情報
NTビルの貸事務所・賃貸オフィス情報
NTビル
- エレベーター
- 耐震確認中
NTビルの空室フロアリスト
現在、空室がございません。
NTビルの物件情報
NTビル(新宿区高田馬場)は高田馬場駅徒歩1分、西早稲田駅徒歩9分、学習院下駅徒歩11分の賃貸オフィスです。
NTビルのアクセス
NTビルの募集終了区画
| 階数 | 面積 | 賃料+共益費 | 保証金 | 入居時期 | 更新料 | 償却費 | 礼金 | 平面図 | 詳細 |
|---|---|---|---|---|---|---|---|---|---|
| 1 | 21.65坪 | − | − | 募集終了 | − | − | − | ||
| 2 | 20.33坪 | − | − | 募集終了 | − | − | − | ||
| 4 | 20.23坪 | − | − | 募集終了 | − | − | − | ||
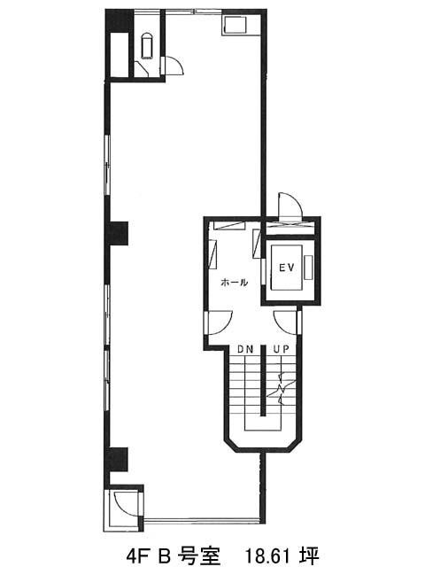
| 4 | 18.61坪 | − | − | 募集終了 | − | − | − | ||
| 5 | 17.01坪 | − | − | 募集終了 | − | − | − |


