四谷ビルの貸事務所・賃貸オフィス情報
四谷ビルの貸事務所・賃貸オフィス情報
四谷ビル
- エレベーター
- 個別空調
- 旧耐震基準
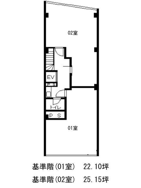
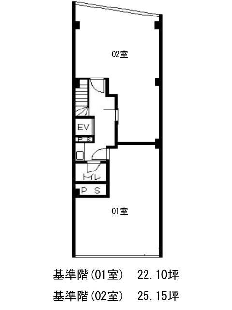
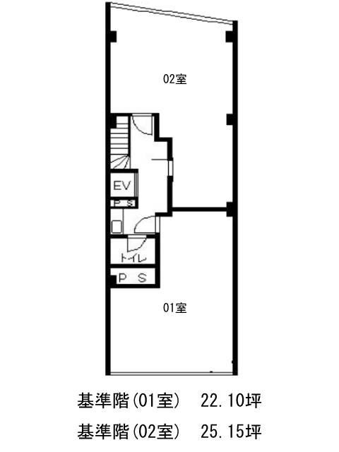
四谷ビルの空室フロアリスト
| 階数 | 面積 | 賃料+共益費 | 保証金 | 入居時期 | 更新料 | 償却費 | 礼金 | 検討 | 平面図 | 詳細 |
|---|---|---|---|---|---|---|---|---|---|---|
| 6 | 22.10坪 |
279,565円12,650円/坪
|
101万円
|
相談 | 新1ケ月 | なし | 1ケ月 |
四谷ビルの物件情報
四谷ビル(新宿区四谷)は四ツ谷駅徒歩4分、四谷三丁目駅徒歩8分、曙橋駅徒歩13分の賃貸オフィスです。
四谷ビルのアクセス
四谷ビルの条件に近い物件
四谷ビルの募集終了区画
| 階数 | 面積 | 賃料+共益費 | 保証金 | 入居時期 | 更新料 | 償却費 | 礼金 | 平面図 | 詳細 |
|---|---|---|---|---|---|---|---|---|---|
| 2 | 22.00坪 | − | − | 募集終了 | − | − | − | ||
| 2 | 25.00坪 | − | − | 募集終了 | − | − | − | ||
| 3 | 22.10坪 | − | − | 募集終了 | − | − | − | ||
| 3 | 25.15坪 | − | − | 募集終了 | − | − | − | ||
| 4 | 22.10坪 | − | − | 募集終了 | − | − | − | ||
| 4 | 25.15坪 | − | − | 募集終了 | − | − | − | ||
| 5 | 22.08坪 | − | − | 募集終了 | − | − | − | ||
| 5 | 25.11坪 | − | − | 募集終了 | − | − | − | ||
| 6 | 22.10坪 | − | − | 募集終了 | − | − | − |


