FORECAST四谷の貸事務所・賃貸オフィス情報
FORECAST四谷の貸事務所・賃貸オフィス情報
FORECAST四谷
- エレベーター
- 個別空調
- 駐車場
- 新耐震基準
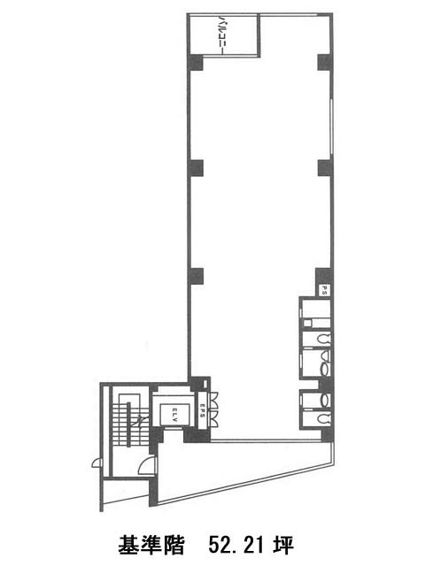
FORECAST四谷の空室フロアリスト
| 階数 | 面積 | 賃料+共益費 | 保証金 | 入居時期 | 更新料 | 償却費 | 礼金 | 検討 | 平面図 | 詳細 |
|---|---|---|---|---|---|---|---|---|---|---|
| 4 | 52.21坪 |
応相談応相談
|
応相談
|
2026年5月上旬 | なし | なし | なし | |||
| 10 | 52.22坪 |
応相談応相談
|
応相談
|
即 | なし | なし | なし |
FORECAST四谷の物件情報
FORECAST四谷(新宿区四谷)は四谷三丁目駅徒歩5分、四ツ谷駅徒歩7分、曙橋駅徒歩9分の賃貸オフィスです。
FORECAST四谷のアクセス
FORECAST四谷の条件に近い物件
FORECAST四谷の募集終了区画
| 階数 | 面積 | 賃料+共益費 | 保証金 | 入居時期 | 更新料 | 償却費 | 礼金 | 平面図 | 詳細 |
|---|---|---|---|---|---|---|---|---|---|
| 1 | 31.69坪 | − | − | 募集終了 | − | − | − | ||
| 2 | 55.58坪 | − | − | 募集終了 | − | − | − | ||
| 3 | 52.21坪 | − | − | 募集終了 | − | − | − | ||
| 5 | 52.21坪 | − | − | 募集終了 | − | − | − | ||
| 6 | 52.21坪 | − | − | 募集終了 | − | − | − | ||
| 7 | 52.21坪 | − | − | 募集終了 | − | − | − | ||
| 11 | 29.99坪 | − | − | 募集終了 | − | − | − |


