西新宿KFビルの貸事務所・賃貸オフィス情報
西新宿KFビルの貸事務所・賃貸オフィス情報
西新宿KFビル
- 物件番号
- 237-00065
- 所在地
- 東京都新宿区西新宿8-14-24
- 竣工
- 1993年1月
- 規模
- 地上8階/地下1階
- エレベーター
- 個別空調
- 駐車場
- 新耐震基準
西新宿KFビルの空室フロアリスト
| 階数 | 面積 | 賃料+共益費 | 保証金 | 入居時期 | 更新料 | 償却費 | 礼金 | 検討 | 平面図 | 詳細 |
|---|---|---|---|---|---|---|---|---|---|---|
| 7-8F(708) | 29.62坪 |
応相談応相談
|
応相談
|
即 | なし | なし | なし |
西新宿KFビルの物件情報
西新宿KFビル(新宿区西新宿)は西新宿駅徒歩4分、都庁前駅徒歩8分、新宿駅徒歩10分の賃貸オフィスです。
西新宿KFビルのアクセス
西新宿KFビルの条件に近い物件
西新宿KFビルの募集終了区画
| 階数 | 面積 | 賃料+共益費 | 保証金 | 入居時期 | 更新料 | 償却費 | 礼金 | 平面図 | 詳細 |
|---|---|---|---|---|---|---|---|---|---|
| 7-8(704) | 27.94坪 | − | − | 募集終了 | − | − | − | ||
| 7-8(703) | 26.39坪 | − | − | 募集終了 | − | − | − | ||
| 7-8(705) | 29.71坪 | − | − | 募集終了 | − | − | − | ||
| 7-8(710) | 27.71坪 | − | − | 募集終了 | − | − | − | ||
| 7-8(701) | 26.91坪 | − | − | 募集終了 | − | − | − | ||
| 7-8(702) | 24.85坪 | − | − | 募集終了 | − | − | − | ||
| 1 | 170.45坪 | − | − | 募集終了 | − | − | − | ||
| 2 | 133.28坪 | − | − | 募集終了 | − | − | − | ||
| 2 | 133.28坪 | − | − | 募集終了 | − | − | − | ||
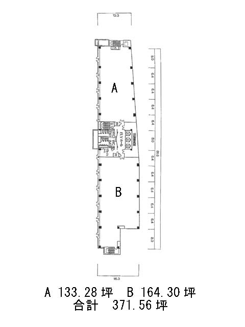
| 3 | 164.30坪 | − | − | 募集終了 | − | − | − | ||
| 3 | 133.28坪 | − | − | 募集終了 | − | − | − | ||
| 4 | 164.30坪 | − | − | 募集終了 | − | − | − | ||
| 4 | 133.28坪 | − | − | 募集終了 | − | − | − | ||
| 5 | 164.30坪 | − | − | 募集終了 | − | − | − | ||
| 5 | 133.28坪 | − | − | 募集終了 | − | − | − | ||
| 6 | 144.94坪 | − | − | 募集終了 | − | − | − | ||
| 6 | 117.34坪 | − | − | 募集終了 | − | − | − | ||
| 7 | 29.62坪 | − | − | 募集終了 | − | − | − | ||
| 7 | 27.71坪 | − | − | 募集終了 | − | − | − |


