弘林ビルの貸事務所・賃貸オフィス情報
弘林ビルの貸事務所・賃貸オフィス情報
弘林ビル
- エレベーター
- 新耐震基準
弘林ビルの空室フロアリスト
| 階数 | 面積 | 賃料+共益費 | 保証金 | 入居時期 | 更新料 | 償却費 | 礼金 | 検討 | 平面図 | 詳細 |
|---|---|---|---|---|---|---|---|---|---|---|
| 1 | 42.81坪 |
941,820円22,000円/坪
|
513万円
|
2026年6月上旬 | 新1ケ月 | 2ケ月 | なし | |||
| 3 | 48.95坪 |
753,830円15,400円/坪
|
411万円
|
2026年6月上旬 | 新1ケ月 | 2ケ月 | なし |
弘林ビルの物件情報
弘林ビル(新宿区北新宿)は大久保駅徒歩5分、新大久保駅徒歩9分、東中野駅徒歩12分の賃貸オフィスです。
弘林ビルのアクセス
弘林ビルの募集終了区画
| 階数 | 面積 | 賃料+共益費 | 保証金 | 入居時期 | 更新料 | 償却費 | 礼金 | 平面図 | 詳細 |
|---|---|---|---|---|---|---|---|---|---|
| 地下1 | 40.60坪 | − | − | 募集終了 | − | − | − | ||
| 4 | 30.30坪 | − | − | 募集終了 | − | − | − | ||
| 5 | 30.31坪 | − | − | 募集終了 | − | − | − | ||
| 6 | 29.42坪 | − | − | 募集終了 | − | − | − | ||
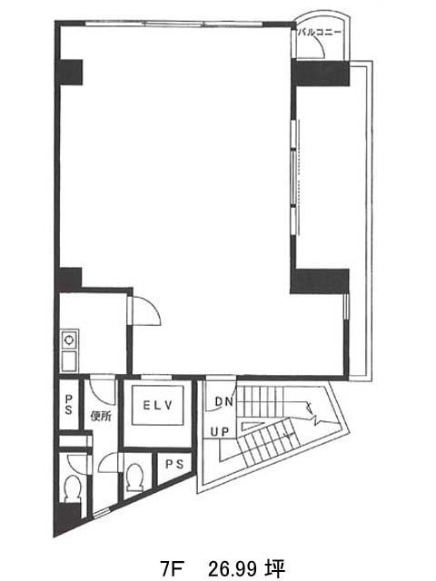
| 7 | 26.99坪 | − | − | 募集終了 | − | − | − |


