MYK四ツ谷の貸事務所・賃貸オフィス情報
MYK四ツ谷の貸事務所・賃貸オフィス情報
MYK四ツ谷
- 物件番号
- 276-00027
- 所在地
- 東京都新宿区四谷本塩町11-9
- 竣工
- 2009年3月
- 規模
- 地上4階/地下1階
- エレベーター
- 個別空調
- 駐車場
- 新耐震基準
MYK四ツ谷の空室フロアリスト
| 階数 | 面積 | 賃料+共益費 | 保証金 | 入居時期 | 更新料 | 償却費 | 礼金 | 検討 | 平面図 | 詳細 |
|---|---|---|---|---|---|---|---|---|---|---|
| 地下1 | 19.59坪 |
294,200円15,019円/坪
|
141万円
|
即 | 新1ケ月 | なし | 1ケ月 |
MYK四ツ谷の物件情報
MYK四ツ谷(新宿区四谷本塩町)は四ツ谷駅徒歩7分、市ヶ谷駅徒歩7分、曙橋駅徒歩10分の賃貸オフィスです。
MYK四ツ谷のアクセス
MYK四ツ谷の募集終了区画
| 階数 | 面積 | 賃料+共益費 | 保証金 | 入居時期 | 更新料 | 償却費 | 礼金 | 平面図 | 詳細 |
|---|---|---|---|---|---|---|---|---|---|
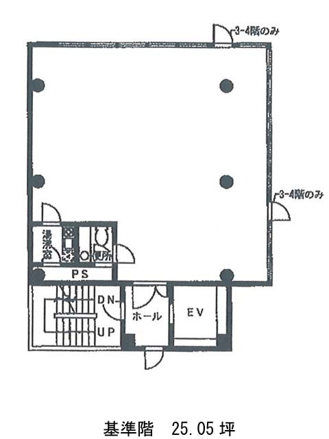
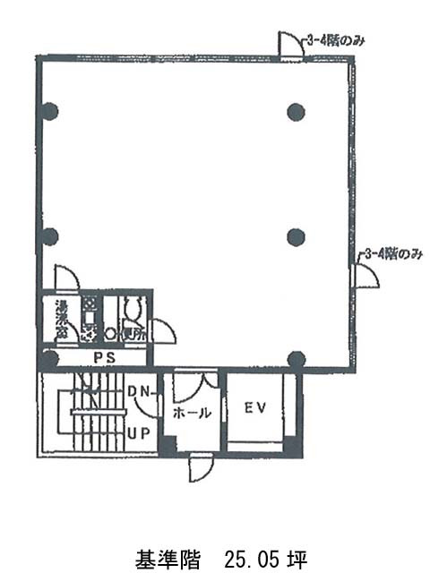
| 1 | 25.05坪 | − | − | 募集終了 | − | − | − | ||
| 2 | 25.05坪 | − | − | 募集終了 | − | − | − | ||
| 3 | 25.05坪 | − | − | 募集終了 | − | − | − | ||
| 4 | 25.05坪 | − | − | 募集終了 | − | − | − |


