第5英晃ビルの貸事務所・賃貸オフィス情報
第5英晃ビルの貸事務所・賃貸オフィス情報
第5英晃ビル
- 個別空調
- 旧耐震基準
第5英晃ビルの空室フロアリスト
| 階数 | 面積 | 賃料+共益費 | 保証金 | 入居時期 | 更新料 | 償却費 | 礼金 | 検討 | 平面図 | 詳細 |
|---|---|---|---|---|---|---|---|---|---|---|
| 3 | 26.80坪 |
242,550円9,050円/坪
|
84万円
|
即 | 新1ケ月 | なし | 1ケ月 |
第5英晃ビルの物件情報
第5英晃ビル(新宿区矢来町)は神楽坂駅徒歩2分、牛込神楽坂駅徒歩8分、江戸川橋駅徒歩11分の賃貸オフィスです。
第5英晃ビルのアクセス
第5英晃ビルの募集終了区画
| 階数 | 面積 | 賃料+共益費 | 保証金 | 入居時期 | 更新料 | 償却費 | 礼金 | 平面図 | 詳細 |
|---|---|---|---|---|---|---|---|---|---|
| 2 | 27.50坪 | − | − | 募集終了 | − | − | − | ||
| 3 | 28.50坪 | − | − | 募集終了 | − | − | − | ||
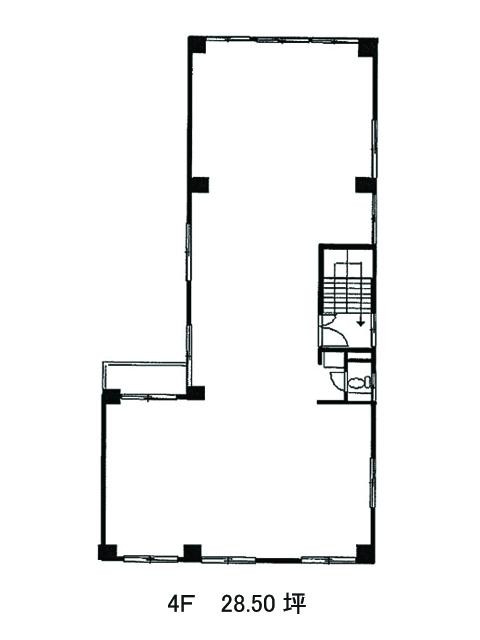
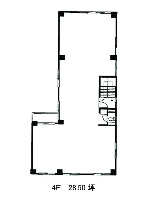
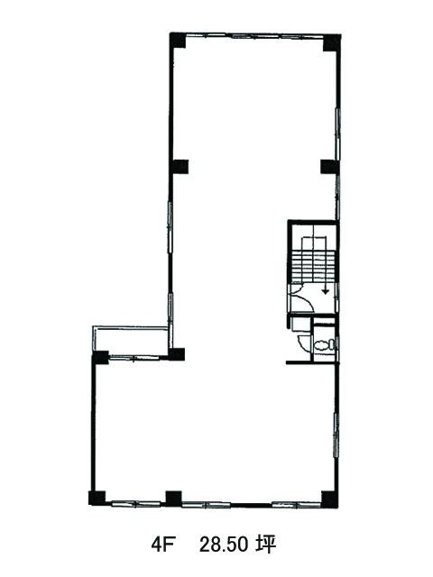
| 4 | 28.50坪 | − | − | 募集終了 | − | − | − |


