THE CROSS 一番町の貸事務所・賃貸オフィス情報
THE CROSS 一番町の貸事務所・賃貸オフィス情報
THE CROSS 一番町
- エレベーター
- 個別空調
- 新耐震基準
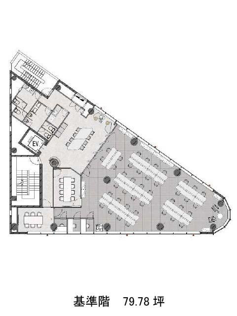
THE CROSS 一番町の空室フロアリスト
| 階数 | 面積 | 賃料+共益費 | 保証金 | 入居時期 | 更新料 | 償却費 | 礼金 | 検討 | 平面図 | 詳細 |
|---|---|---|---|---|---|---|---|---|---|---|
| 5 | 79.78坪 |
応相談応相談
|
応相談
|
2026年8月上旬 | なし | なし | なし |
THE CROSS 一番町の物件情報
THE CROSS 一番町(千代田区一番町)は半蔵門駅徒歩2分、麹町駅徒歩8分、市ヶ谷駅徒歩10分の賃貸オフィスです。
THE CROSS 一番町のアクセス
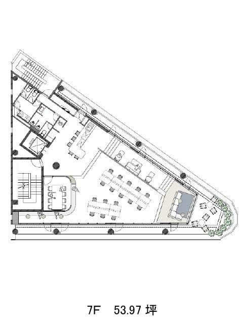
THE CROSS 一番町の募集終了区画
| 階数 | 面積 | 賃料+共益費 | 保証金 | 入居時期 | 更新料 | 償却費 | 礼金 | 平面図 | 詳細 |
|---|---|---|---|---|---|---|---|---|---|
| 地下1 | 33.31坪 | − | − | 募集終了 | − | − | − | ||
| 地下1 | 28.22坪 | − | − | 募集終了 | − | − | − | ||
| 2 | 75.81坪 | − | − | 募集終了 | − | − | − | ||
| 3 | 79.78坪 | − | − | 募集終了 | − | − | − | ||
| 4 | 79.78坪 | − | − | 募集終了 | − | − | − | ||
| 6 | 79.78坪 | − | − | 募集終了 | − | − | − | ||
| 7 | 53.97坪 | − | − | 募集終了 | − | − | − |


