現在、空室がございません。
壱番館の貸事務所・賃貸オフィス情報
壱番館の貸事務所・賃貸オフィス情報
壱番館
- エレベーター
- 個別空調
- 旧耐震基準
壱番館の空室フロアリスト
現在、空室がございません。
壱番館の物件情報
壱番館(千代田区一番町)は半蔵門駅徒歩4分、麹町駅徒歩4分、市ヶ谷駅徒歩11分の賃貸オフィスです。
壱番館のアクセス
壱番館の募集終了区画
| 階数 | 面積 | 賃料+共益費 | 保証金 | 入居時期 | 更新料 | 償却費 | 礼金 | 平面図 | 詳細 |
|---|---|---|---|---|---|---|---|---|---|
| 1 | 26.95坪 | − | − | 募集終了 | − | − | − | ||
| 2 | 29.80坪 | − | − | 募集終了 | − | − | − | ||
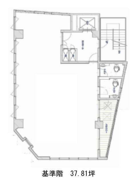
| 3 | 37.81坪 | − | − | 募集終了 | − | − | − | ||
| 4 | 37.81坪 | − | − | 募集終了 | − | − | − | ||
| 5 | 38.00坪 | − | − | 募集終了 | − | − | − |


