鎌形ビルの貸事務所・賃貸オフィス情報
鎌形ビルの貸事務所・賃貸オフィス情報
鎌形ビル
- 物件番号
- 379-00012
- 所在地
- 東京都千代田区神田猿楽町2-1-2
- 竣工
- 1975年8月
- 規模
- 地上6階/地下1階
- エレベーター
- 個別空調
- 駐車場
- 旧耐震基準
鎌形ビルの空室フロアリスト
| 階数 | 面積 | 賃料+共益費 | 保証金 | 入居時期 | 更新料 | 償却費 | 礼金 | 検討 | 平面図 | 詳細 |
|---|---|---|---|---|---|---|---|---|---|---|
| 1 | 21.15坪 |
325,710円15,400円/坪
|
118万円
|
即 | 新1ケ月 | 2ケ月 | なし | |||
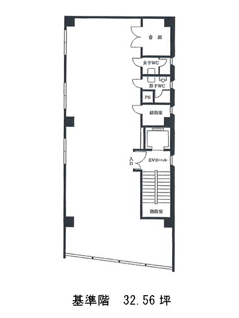
| 3 | 32.56坪 |
501,424円15,400円/坪
|
182万円
|
即 | 新1ケ月 | 2ケ月 | なし |
鎌形ビルの物件情報
鎌形ビル(千代田区神田猿楽町)は神保町駅徒歩6分、御茶ノ水駅徒歩8分、水道橋駅徒歩9分の賃貸オフィスです。
鎌形ビルのアクセス
鎌形ビルの募集終了区画
| 階数 | 面積 | 賃料+共益費 | 保証金 | 入居時期 | 更新料 | 償却費 | 礼金 | 平面図 | 詳細 |
|---|---|---|---|---|---|---|---|---|---|
| 2 | 32.56坪 | − | − | 募集終了 | − | − | − | ||
| 4 | 32.56坪 | − | − | 募集終了 | − | − | − |


