熊谷ビルの貸事務所・賃貸オフィス情報
熊谷ビルの貸事務所・賃貸オフィス情報
熊谷ビル
- エレベーター
- 個別空調
- 新耐震基準
熊谷ビルの空室フロアリスト
| 階数 | 面積 | 賃料+共益費 | 保証金 | 入居時期 | 更新料 | 償却費 | 礼金 | 検討 | 平面図 | 詳細 |
|---|---|---|---|---|---|---|---|---|---|---|
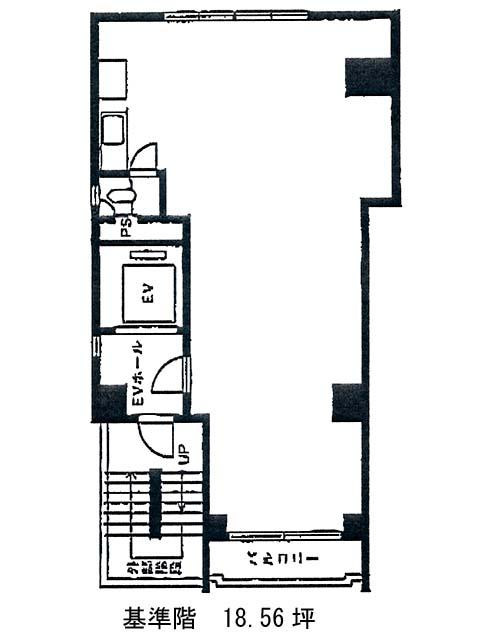
| 2 | 18.56坪 |
306,238円16,500円/坪
|
193万円
|
2026年5月中旬 | なし | 1ケ月 | なし |
熊谷ビルの物件情報
熊谷ビル(千代田区外神田)は秋葉原駅徒歩5分、末広町駅徒歩7分、新御茶ノ水駅徒歩7分の賃貸オフィスです。
熊谷ビルのアクセス
熊谷ビルの条件に近い物件
熊谷ビルの募集終了区画
| 階数 | 面積 | 賃料+共益費 | 保証金 | 入居時期 | 更新料 | 償却費 | 礼金 | 平面図 | 詳細 |
|---|---|---|---|---|---|---|---|---|---|
| 1 | 17.80坪 | − | − | 募集終了 | − | − | − | ||
| 3 | 18.56坪 | − | − | 募集終了 | − | − | − | ||
| 4 | 18.56坪 | − | − | 募集終了 | − | − | − | ||
| 5 | 18.56坪 | − | − | 募集終了 | − | − | − | ||
| 6 | 18.56坪 | − | − | 募集終了 | − | − | − |


