九段サザンビルの貸事務所・賃貸オフィス情報
九段サザンビルの貸事務所・賃貸オフィス情報
九段サザンビル
- 物件番号
- 385-00101
- 所在地
- 東京都千代田区九段南3-9-1
- 竣工
- 1990年12月
- 規模
- 地上6階/地下1階
- エレベーター
- 個別空調
- 新耐震基準
九段サザンビルの空室フロアリスト
| 階数 | 面積 | 賃料+共益費 | 保証金 | 入居時期 | 更新料 | 償却費 | 礼金 | 検討 | 平面図 | 詳細 |
|---|---|---|---|---|---|---|---|---|---|---|
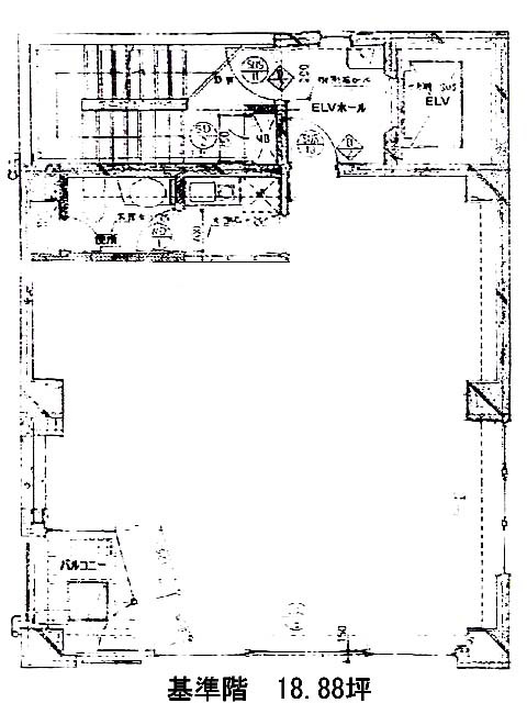
| 5 | 18.88坪 |
394,592円20,900円/坪
|
215万円
|
2026年4月上旬 | 新1ケ月 | なし | なし |
九段サザンビルの物件情報
九段サザンビル(千代田区九段南)は市ヶ谷駅徒歩5分、半蔵門駅徒歩10分、九段下駅徒歩11分の賃貸オフィスです。
九段サザンビルのアクセス
九段サザンビルの募集終了区画
| 階数 | 面積 | 賃料+共益費 | 保証金 | 入居時期 | 更新料 | 償却費 | 礼金 | 平面図 | 詳細 |
|---|---|---|---|---|---|---|---|---|---|
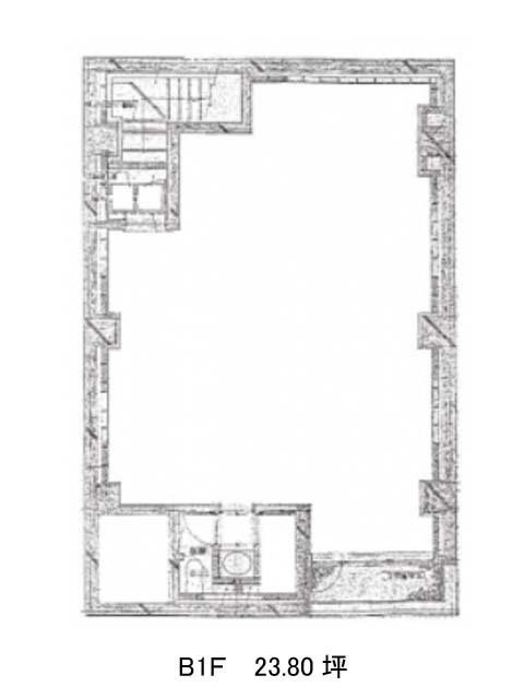
| 地下1 | 23.80坪 | − | − | 募集終了 | − | − | − | ||
| 2 | 18.88坪 | − | − | 募集終了 | − | − | − | ||
| 3 | 18.88坪 | − | − | 募集終了 | − | − | − | ||
| 4 | 18.88坪 | − | − | 募集終了 | − | − | − | ||
| 6 | 18.88坪 | − | − | 募集終了 | − | − | − | ||
| 6 | 16.30坪 | − | − | 募集終了 | − | − | − |


