イシカワB.L.D.九段の貸事務所・賃貸オフィス情報
イシカワB.L.D.九段の貸事務所・賃貸オフィス情報
イシカワB.L.D.九段
- エレベーター
- 個別空調
- 新耐震基準
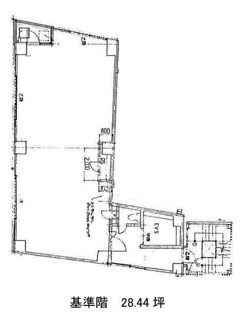
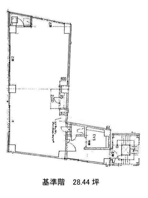
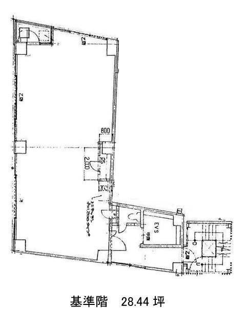
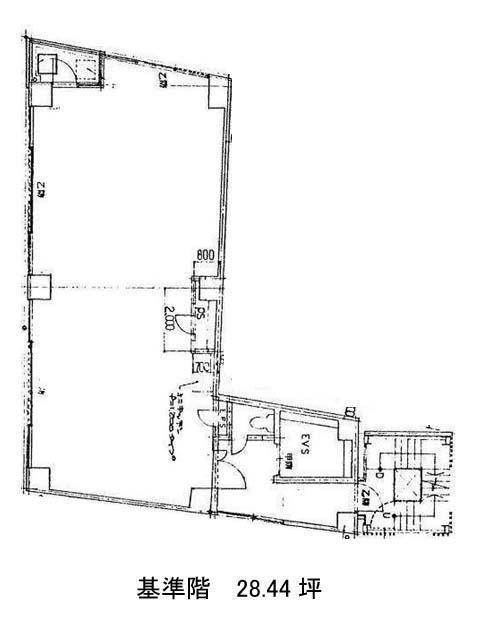
イシカワB.L.D.九段の空室フロアリスト
| 階数 | 面積 | 賃料+共益費 | 保証金 | 入居時期 | 更新料 | 償却費 | 礼金 | 検討 | 平面図 | 詳細 |
|---|---|---|---|---|---|---|---|---|---|---|
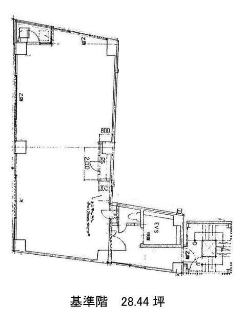
| 7 | 28.44坪 |
437,976円15,400円/坪
|
318万円
|
2026年6月中旬 | 新1ケ月 | 2ケ月 | なし |
イシカワB.L.D.九段の物件情報
イシカワB.L.D.九段(千代田区九段南)は市ヶ谷駅徒歩8分、九段下駅徒歩9分、半蔵門駅徒歩10分の賃貸オフィスです。
イシカワB.L.D.九段のアクセス
イシカワB.L.D.九段の条件に近い物件
イシカワB.L.D.九段の募集終了区画
| 階数 | 面積 | 賃料+共益費 | 保証金 | 入居時期 | 更新料 | 償却費 | 礼金 | 平面図 | 詳細 |
|---|---|---|---|---|---|---|---|---|---|
| 1 | 22.90坪 | − | − | 募集終了 | − | − | − | ||
| 2 | 28.44坪 | − | − | 募集終了 | − | − | − | ||
| 3 | 28.44坪 | − | − | 募集終了 | − | − | − | ||
| 4 | 28.44坪 | − | − | 募集終了 | − | − | − | ||
| 5 | 28.44坪 | − | − | 募集終了 | − | − | − | ||
| 6 | 28.44坪 | − | − | 募集終了 | − | − | − |


