現在、空室がございません。
グレース和平の貸事務所・賃貸オフィス情報
グレース和平の貸事務所・賃貸オフィス情報
グレース和平
- エレベーター
- 駐車場
- 新耐震基準
グレース和平の空室フロアリスト
現在、空室がございません。
グレース和平の物件情報
グレース和平(千代田区九段南)は市ヶ谷駅徒歩6分、半蔵門駅徒歩10分、九段下駅徒歩11分の賃貸オフィスです。
グレース和平のアクセス
グレース和平の募集終了区画
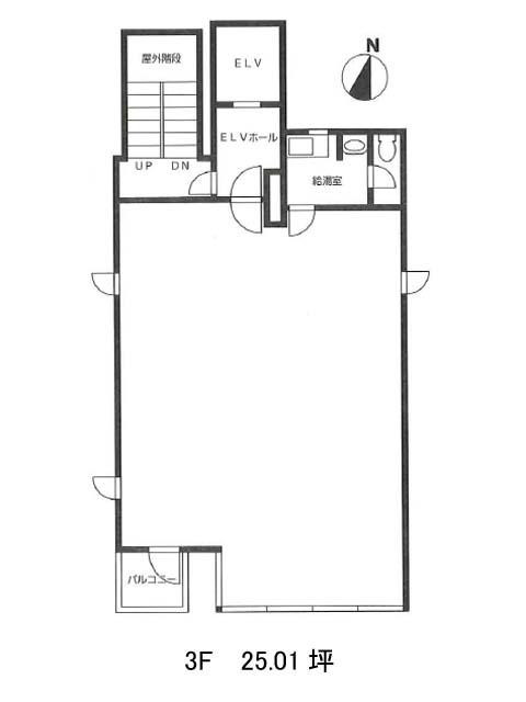
| 階数 | 面積 | 賃料+共益費 | 保証金 | 入居時期 | 更新料 | 償却費 | 礼金 | 平面図 | 詳細 |
|---|---|---|---|---|---|---|---|---|---|
| 2 | 25.01坪 | − | − | 募集終了 | − | − | − | ||
| 3 | 25.01坪 | − | − | 募集終了 | − | − | − | ||
| 4 | 42.88坪 | − | − | 募集終了 | − | − | − |


