プロンテ九段ビルの貸事務所・賃貸オフィス情報
プロンテ九段ビルの貸事務所・賃貸オフィス情報
プロンテ九段ビル
- エレベーター
- 個別空調
- 新耐震基準
プロンテ九段ビルの空室フロアリスト
| 階数 | 面積 | 賃料+共益費 | 保証金 | 入居時期 | 更新料 | 償却費 | 礼金 | 検討 | 平面図 | 詳細 |
|---|---|---|---|---|---|---|---|---|---|---|
| 5-6F | 28.07坪 |
617,540円22,000円/坪
|
224万円
|
2025年12月上旬 | 新1ケ月 | なし | なし |
プロンテ九段ビルの物件情報
プロンテ九段ビル(千代田区九段南)は市ヶ谷駅徒歩5分、半蔵門駅徒歩10分、九段下駅徒歩11分の賃貸オフィスです。
プロンテ九段ビルのアクセス
プロンテ九段ビルの募集終了区画
| 階数 | 面積 | 賃料+共益費 | 保証金 | 入居時期 | 更新料 | 償却費 | 礼金 | 平面図 | 詳細 |
|---|---|---|---|---|---|---|---|---|---|
| 1 | 24.99坪 | − | − | 募集終了 | − | − | − | ||
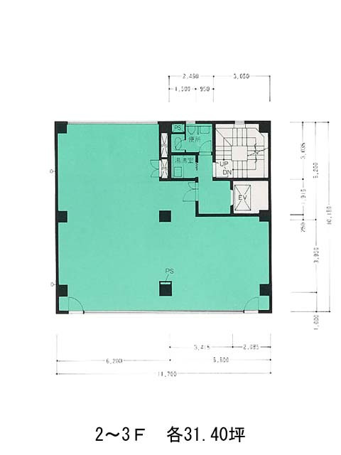
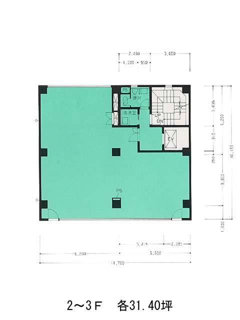
| 2 | 31.40坪 | − | − | 募集終了 | − | − | − | ||
| 3 | 31.40坪 | − | − | 募集終了 | − | − | − | ||
| 4 | 23.55坪 | − | − | 募集終了 | − | − | − |


