PILE kudanの貸事務所・賃貸オフィス情報
PILE kudanの貸事務所・賃貸オフィス情報
PILE kudan
- 物件番号
- 386-00150
- 所在地
- 東京都千代田区九段北1-14-16
- 竣工
- 1986年3月
- 規模
- 地上6階/地下1階
- エレベーター
- 個別空調
- 駐車場
- 新耐震基準
PILE kudanの空室フロアリスト
| 階数 | 面積 | 賃料+共益費 | 保証金 | 入居時期 | 更新料 | 償却費 | 礼金 | 検討 | 平面図 | 詳細 |
|---|---|---|---|---|---|---|---|---|---|---|
| 4 | 25.70坪 |
715,000円27,821円/坪
|
195万円
|
即 | 新1ケ月 | 1ケ月 | なし | |||
| 5 | 47.44坪 |
1,422,080円29,977円/坪
|
349万円
|
2026年2月上旬 | 新1ケ月 | 1ケ月 | なし | |||
| 5 | 20.60坪 |
646,580円31,388円/坪
|
159万円
|
2026年2月上旬 | 新1ケ月 | 1ケ月 | なし | |||
| 5 | 26.84坪 |
830,500円30,944円/坪
|
205万円
|
2026年2月上旬 | 新1ケ月 | 1ケ月 | なし |
PILE kudanの物件情報
PILE kudan(千代田区九段北)は九段下駅徒歩3分、飯田橋駅徒歩9分、神保町駅徒歩9分の賃貸オフィスです。
PILE kudanのアクセス
PILE kudanの募集終了区画
| 階数 | 面積 | 賃料+共益費 | 保証金 | 入居時期 | 更新料 | 償却費 | 礼金 | 平面図 | 詳細 |
|---|---|---|---|---|---|---|---|---|---|
| 5-6 | 137.40坪 | − | − | 募集終了 | − | − | − | ||
| 4-6 | 224.68坪 | − | − | 募集終了 | − | − | − | ||
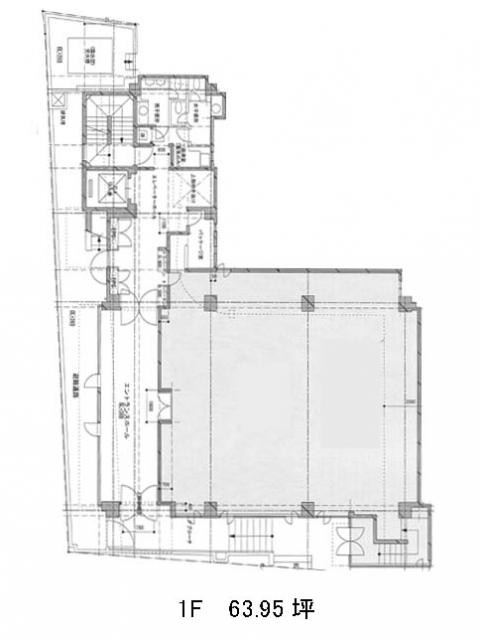
| 1 | 63.95坪 | − | − | 募集終了 | − | − | − | ||
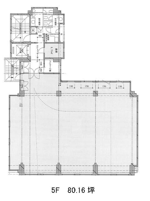
| 2 | 80.16坪 | − | − | 募集終了 | − | − | − | ||
| 2 | 20.60坪 | − | − | 募集終了 | − | − | − | ||
| 3 | 79.92坪 | − | − | 募集終了 | − | − | − | ||
| 3 | 25.70坪 | − | − | 募集終了 | − | − | − | ||
| 3 | 47.44坪 | − | − | 募集終了 | − | − | − | ||
| 4 | 80.16坪 | − | − | 募集終了 | − | − | − | ||
| 4 | 26.84坪 | − | − | 募集終了 | − | − | − | ||
| 4 | 20.60坪 | − | − | 募集終了 | − | − | − | ||
| 5 | 80.16坪 | − | − | 募集終了 | − | − | − | ||
| 5 | 26.84坪 | − | − | 募集終了 | − | − | − | ||
| 5 | 20.60坪 | − | − | 募集終了 | − | − | − | ||
| 5 | 25.70坪 | − | − | 募集終了 | − | − | − | ||
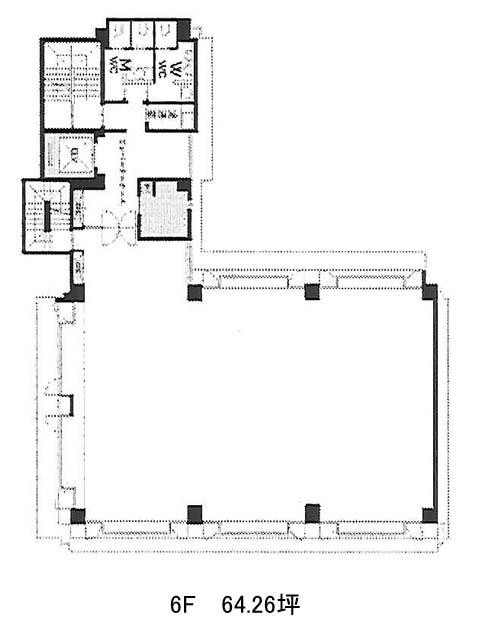
| 6 | 64.26坪 | − | − | 募集終了 | − | − | − |


