アリビオ九段の貸事務所・賃貸オフィス情報
アリビオ九段の貸事務所・賃貸オフィス情報
アリビオ九段
- 物件番号
- 386-00152
- 所在地
- 東京都千代田区九段北1-6-1
- 竣工
- 2004年12月
- 規模
- 地上9階/地下1階
- エレベーター
- 個別空調
- 駐車場
- 新耐震基準
アリビオ九段の空室フロアリスト
| 階数 | 面積 | 賃料+共益費 | 保証金 | 入居時期 | 更新料 | 償却費 | 礼金 | 検討 | 平面図 | 詳細 |
|---|---|---|---|---|---|---|---|---|---|---|
| 9 | 64.19坪 |
1,430,000円22,278円/坪
|
780万円
|
即 | 新1ケ月 | なし | 1ケ月 |
アリビオ九段の物件情報
アリビオ九段(千代田区九段北)は九段下駅徒歩3分、神保町駅徒歩5分、飯田橋駅徒歩10分の賃貸オフィスです。
アリビオ九段のアクセス
アリビオ九段の条件に近い物件
アリビオ九段の募集終了区画
| 階数 | 面積 | 賃料+共益費 | 保証金 | 入居時期 | 更新料 | 償却費 | 礼金 | 平面図 | 詳細 |
|---|---|---|---|---|---|---|---|---|---|
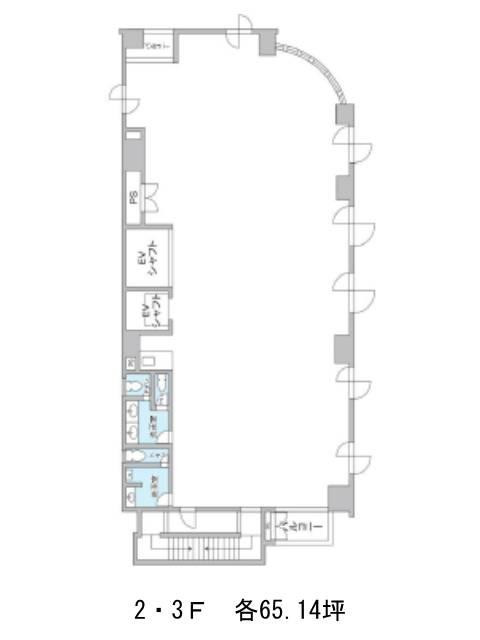
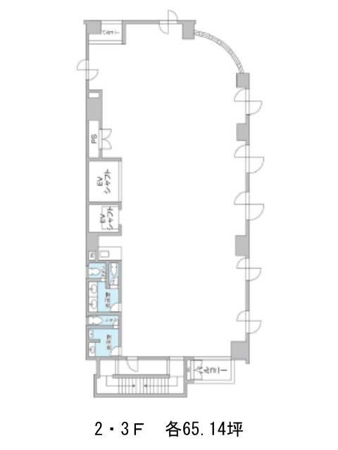
| 2 | 65.14坪 | − | − | 募集終了 | − | − | − | ||
| 3 | 65.14坪 | − | − | 募集終了 | − | − | − | ||
| 4 | 65.14坪 | − | − | 募集終了 | − | − | − |


