五番町コスモビルの貸事務所・賃貸オフィス情報
五番町コスモビルの貸事務所・賃貸オフィス情報
五番町コスモビル
- エレベーター
- 個別空調
- 耐震補強済み
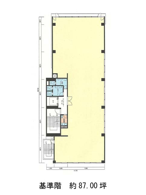
五番町コスモビルの空室フロアリスト
| 階数 | 面積 | 賃料+共益費 | 保証金 | 入居時期 | 更新料 | 償却費 | 礼金 | 検討 | 平面図 | 詳細 |
|---|---|---|---|---|---|---|---|---|---|---|
| 2 | 87.57坪 |
1,733,886円19,800円/坪
|
761万円
|
2026年4月上旬 | 新1ケ月 | なし | なし |
五番町コスモビルの物件情報
五番町コスモビル(千代田区五番町)は市ヶ谷駅徒歩2分、麹町駅徒歩7分、四ツ谷駅徒歩10分の賃貸オフィスです。
五番町コスモビルのアクセス
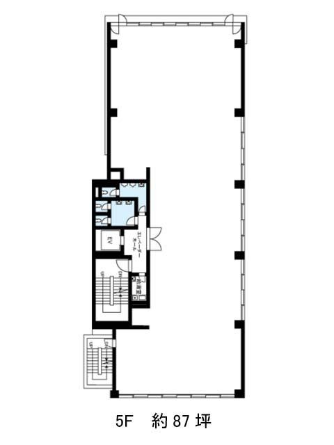
五番町コスモビルの募集終了区画
| 階数 | 面積 | 賃料+共益費 | 保証金 | 入居時期 | 更新料 | 償却費 | 礼金 | 平面図 | 詳細 |
|---|---|---|---|---|---|---|---|---|---|
| 3 | 87.42坪 | − | − | 募集終了 | − | − | − | ||
| 4 | 87.51坪 | − | − | 募集終了 | − | − | − | ||
| 4 | 49.35坪 | − | − | 募集終了 | − | − | − | ||
| 4 | 30.14坪 | − | − | 募集終了 | − | − | − | ||
| 5 | 87.72坪 | − | − | 募集終了 | − | − | − | ||
| 6 | 87.63坪 | − | − | 募集終了 | − | − | − |


