麹町セントラルビル/C-WORKの貸事務所・賃貸オフィス情報
麹町セントラルビル/C-WORKの貸事務所・賃貸オフィス情報
麹町セントラルビル/C-WORK
- 物件番号
- 388-00188
- 所在地
- 東京都千代田区麹町2-2-4
- 竣工
- 1993年2月
- 規模
- 地上9階/地下2階
- エレベーター
- 個別空調
- 駐車場
- 新耐震基準
麹町セントラルビル/C-WORKの空室フロアリスト
| 階数 | 面積 | 賃料+共益費 | 保証金 | 入居時期 | 更新料 | 償却費 | 礼金 | 検討 | 平面図 | 詳細 |
|---|---|---|---|---|---|---|---|---|---|---|
| 2 | 112.46坪 |
応相談応相談
|
応相談
|
相談 | なし | なし | なし |
麹町セントラルビル/C-WORKの物件情報
麹町セントラルビル/C-WORK(千代田区麹町)は半蔵門駅徒歩2分、麹町駅徒歩4分、永田町駅徒歩10分の賃貸オフィスです。
麹町セントラルビル/C-WORKのアクセス
麹町セントラルビル/C-WORKの募集終了区画
| 階数 | 面積 | 賃料+共益費 | 保証金 | 入居時期 | 更新料 | 償却費 | 礼金 | 平面図 | 詳細 |
|---|---|---|---|---|---|---|---|---|---|
| 地下1 | 98.04坪 | − | − | 募集終了 | − | − | − | ||
| B1+1 | 169.63坪 | − | − | 募集終了 | − | − | − | ||
| 1 | 89.83坪 | − | − | 募集終了 | − | − | − | ||
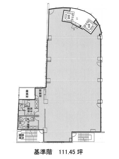
| 3 | 111.45坪 | − | − | 募集終了 | − | − | − | ||
| 4 | 111.45坪 | − | − | 募集終了 | − | − | − | ||
| 4 | 27.00坪 | − | − | 募集終了 | − | − | − | ||
| 5 | 111.45坪 | − | − | 募集終了 | − | − | − | ||
| 6 | 111.45坪 | − | − | 募集終了 | − | − | − | ||
| 6 | 27.00坪 | − | − | 募集終了 | − | − | − | ||
| 6 | 15.63坪 | − | − | 募集終了 | − | − | − | ||
| 7 | 111.45坪 | − | − | 募集終了 | − | − | − | ||
| 8 | 111.45坪 | − | − | 募集終了 | − | − | − | ||
| 9 | 110.14坪 | − | − | 募集終了 | − | − | − |


