現在、空室がございません。
ダイナミックビルの貸事務所・賃貸オフィス情報
ダイナミックビルの貸事務所・賃貸オフィス情報
ダイナミックビル
- 物件番号
- 389-00194
- 所在地
- 東京都千代田区神田三崎町2-6-2
- 竣工
- 1988年6月
- 規模
- 地上5階
- エレベーター
- 個別空調
- 駐車場
- 新耐震基準
ダイナミックビルの空室フロアリスト
現在、空室がございません。
ダイナミックビルの物件情報
ダイナミックビル(千代田区神田三崎町)は水道橋駅徒歩5分、神保町駅徒歩7分、九段下駅徒歩10分の賃貸オフィスです。
ダイナミックビルのアクセス
ダイナミックビルの募集終了区画
| 階数 | 面積 | 賃料+共益費 | 保証金 | 入居時期 | 更新料 | 償却費 | 礼金 | 平面図 | 詳細 |
|---|---|---|---|---|---|---|---|---|---|
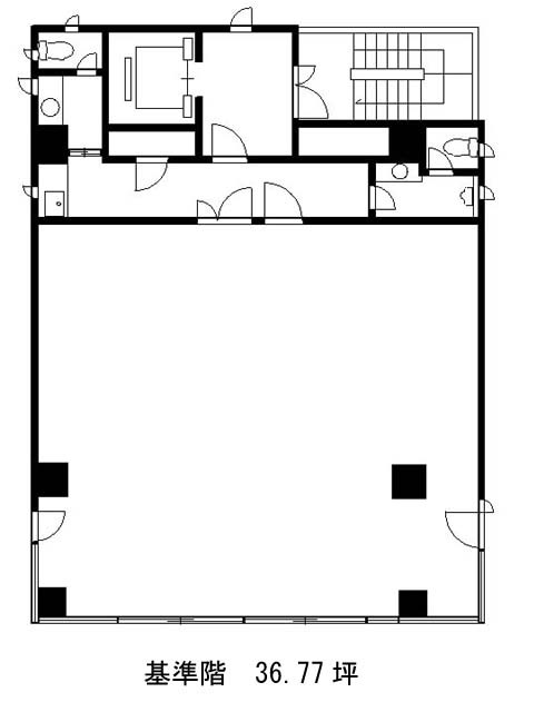
| 2 | 36.77坪 | − | − | 募集終了 | − | − | − | ||
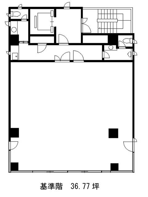
| 3 | 36.77坪 | − | − | 募集終了 | − | − | − | ||
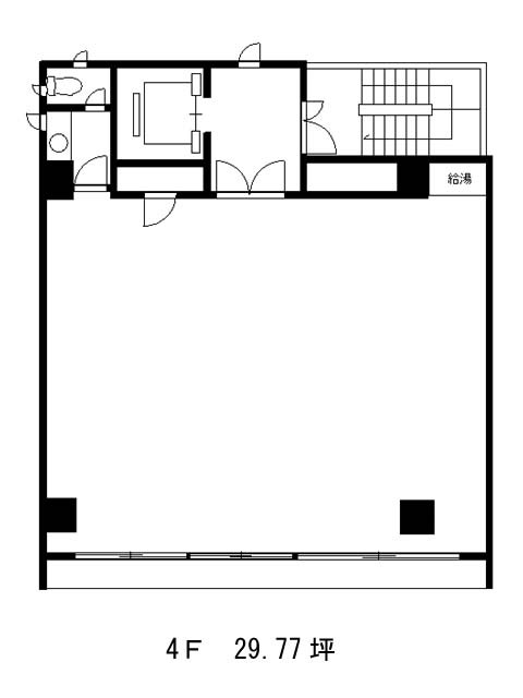
| 4 | 29.77坪 | − | − | 募集終了 | − | − | − |


