現在、空室がございません。
大新ビルの貸事務所・賃貸オフィス情報
大新ビルの貸事務所・賃貸オフィス情報
大新ビル
- 物件番号
- 394-00134
- 所在地
- 東京都千代田区神田錦町2-9
- 竣工
- 1973年4月
- 規模
- 地上7階/地下1階
- エレベーター
- 個別空調
- 駐車場
- 旧耐震基準
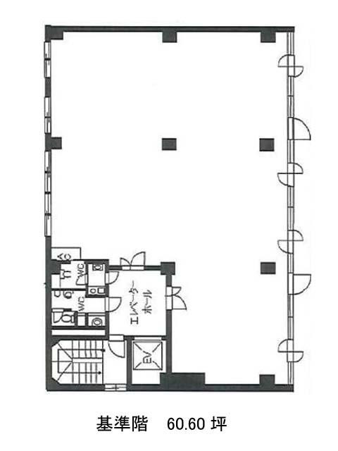
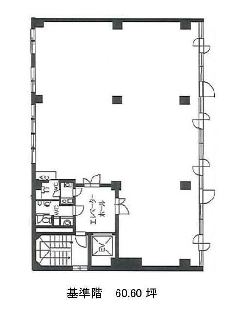
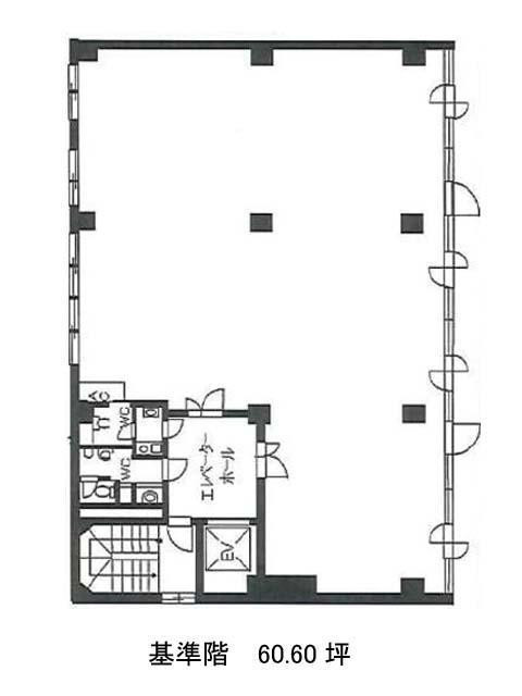
大新ビルの空室フロアリスト
現在、空室がございません。
大新ビルの物件情報
大新ビル(千代田区神田錦町)は竹橋駅徒歩5分、大手町駅徒歩6分、小川町駅徒歩7分の賃貸オフィスです。
大新ビルのアクセス
大新ビルの募集終了区画
| 階数 | 面積 | 賃料+共益費 | 保証金 | 入居時期 | 更新料 | 償却費 | 礼金 | 平面図 | 詳細 |
|---|---|---|---|---|---|---|---|---|---|
| 1 | 49.98坪 | − | − | 募集終了 | − | − | − | ||
| 2 | 60.60坪 | − | − | 募集終了 | − | − | − | ||
| 3 | 60.60坪 | − | − | 募集終了 | − | − | − | ||
| 4 | 60.60坪 | − | − | 募集終了 | − | − | − | ||
| 5 | 60.60坪 | − | − | 募集終了 | − | − | − |


