東京堂錦町ビルディングの貸事務所・賃貸オフィス情報
東京堂錦町ビルディングの貸事務所・賃貸オフィス情報
東京堂錦町ビルディング
- 物件番号
- 394-00025
- 所在地
- 東京都千代田区神田錦町3-7-2
- 竣工
- 1978年3月
- 規模
- 地上9階
- エレベーター
- 個別空調
- 駐車場
- 耐震補強済み
東京堂錦町ビルディングの空室フロアリスト
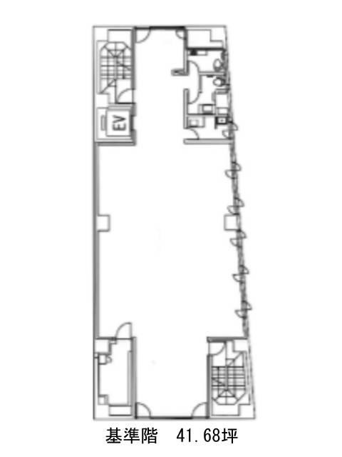
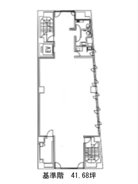
| 階数 | 面積 | 賃料+共益費 | 保証金 | 入居時期 | 更新料 | 償却費 | 礼金 | 検討 | 平面図 | 詳細 |
|---|---|---|---|---|---|---|---|---|---|---|
| 5 | 41.68坪 |
750,211円17,999円/坪
|
818万円
|
2026年10月上旬 | なし | なし | なし |
東京堂錦町ビルディングの物件情報
東京堂錦町ビルディング(千代田区神田錦町)は神保町駅徒歩4分、竹橋駅徒歩4分、大手町駅徒歩10分の賃貸オフィスです。
東京堂錦町ビルディングのアクセス
東京堂錦町ビルディングの募集終了区画
| 階数 | 面積 | 賃料+共益費 | 保証金 | 入居時期 | 更新料 | 償却費 | 礼金 | 平面図 | 詳細 |
|---|---|---|---|---|---|---|---|---|---|
| 2 | 28.54坪 | − | − | 募集終了 | − | − | − | ||
| 3 | 41.68坪 | − | − | 募集終了 | − | − | − | ||
| 4 | 41.68坪 | − | − | 募集終了 | − | − | − | ||
| 6 | 41.68坪 | − | − | 募集終了 | − | − | − | ||
| 7 | 41.88坪 | − | − | 募集終了 | − | − | − | ||
| 8 | 43.18坪 | − | − | 募集終了 | − | − | − | ||
| 9 | 41.88坪 | − | − | 募集終了 | − | − | − |


