現在、空室がございません。
神田錦町ビルの貸事務所・賃貸オフィス情報
神田錦町ビルの貸事務所・賃貸オフィス情報
神田錦町ビル
- 物件番号
- 394-00032
- 所在地
- 東京都千代田区神田錦町3-14-3
- 竣工
- 1990年4月
- 規模
- 地上6階/地下1階
- エレベーター
- 個別空調
- 新耐震基準
神田錦町ビルの空室フロアリスト
現在、空室がございません。
神田錦町ビルの物件情報
神田錦町ビル(千代田区神田錦町)は新御茶ノ水駅徒歩5分、小川町駅徒歩5分、神保町駅徒歩5分の賃貸オフィスです。
神田錦町ビルのアクセス
神田錦町ビルの募集終了区画
| 階数 | 面積 | 賃料+共益費 | 保証金 | 入居時期 | 更新料 | 償却費 | 礼金 | 平面図 | 詳細 |
|---|---|---|---|---|---|---|---|---|---|
| 地下1 | 20.45坪 | − | − | 募集終了 | − | − | − | ||
| 1 | 27.80坪 | − | − | 募集終了 | − | − | − | ||
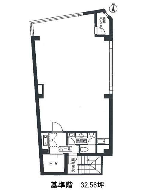
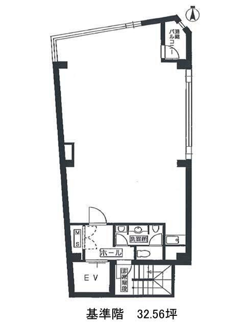
| 3 | 32.56坪 | − | − | 募集終了 | − | − | − | ||
| 4 | 32.56坪 | − | − | 募集終了 | − | − | − | ||
| 5 | 32.56坪 | − | − | 募集終了 | − | − | − | ||
| 6 | 32.56坪 | − | − | 募集終了 | − | − | − | ||
| 7 | 22.86坪 | − | − | 募集終了 | − | − | − | ||
| 10 | 22.86坪 | − | − | 募集終了 | − | − | − |


